Op zoek naar een instapklare woning met comfort en duurzaamheid?
Deze tussenwoning in een rustige woonwijk van Sint-Annaland heeft het allemaal.
Met energielabel B, diverse kunststof kozijnen, rolluiken, airco, een moderne keuken (2020), een vernieuwde badkamer (2023) én 12 zonnepanelen van 260 WP bent u helemaal klaar voor de toekomst.
De gewenste oplevering is 2 maart 2026.
Pluspunten op een rij:
Energielabel B, 12 zonnepanelen (260 WP)
Keuken vernieuwd in 2020, badkamer vernieuwd in 2023
Diverse kunststof kozijnen en rolluiken
Voor- en achtertuin fraai aangelegd, grote geïsoleerde schuur met vliering
Airco aanwezig
Gelegen in een rustige woonwijk van Sint-Annaland
Begane grond
De voortuin is in 2025 volledig vernieuwd en geeft de woning een verzorgde uitstraling. U komt binnen via de ruime hal met meterkast en een nieuwe voordeur (2023).
Hier vindt u ook het toilet en de trapopgang naar de eerste verdieping, die in 2023 een moderne "Upstairs"afwerking kreeg.
De doorzon woonkamer is licht en ruim en beschikt zowel aan de voor- als achterzijde over rolluiken.
Vanuit de woonkamer loopt u direct door naar de keuken, die in 2020 volledig vernieuwd is en voorzien van alle gemakken. Aansluitend bevindt zich de praktische bijkeuken met was- en drogeraansluiting.
De zonnige achtertuin is een heerlijke plek om te genieten. Met een zonnescherm, een ruime geïsoleerde schuur met vliering en een vrije achterom biedt deze tuin volop comfort en gemak.
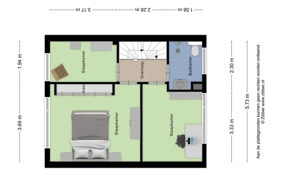
Eerste verdieping
Vanaf de overloop heeft u toegang tot drie slaapkamers en de moderne badkamer. Deze is in 2023 vernieuwd en uitgerust met een douche, een stijlvol badmeubel en een toilet.
Alle slaapkamers zijn voorzien van rolluiken, wat zorgt voor extra comfort en een goede nachtrust.
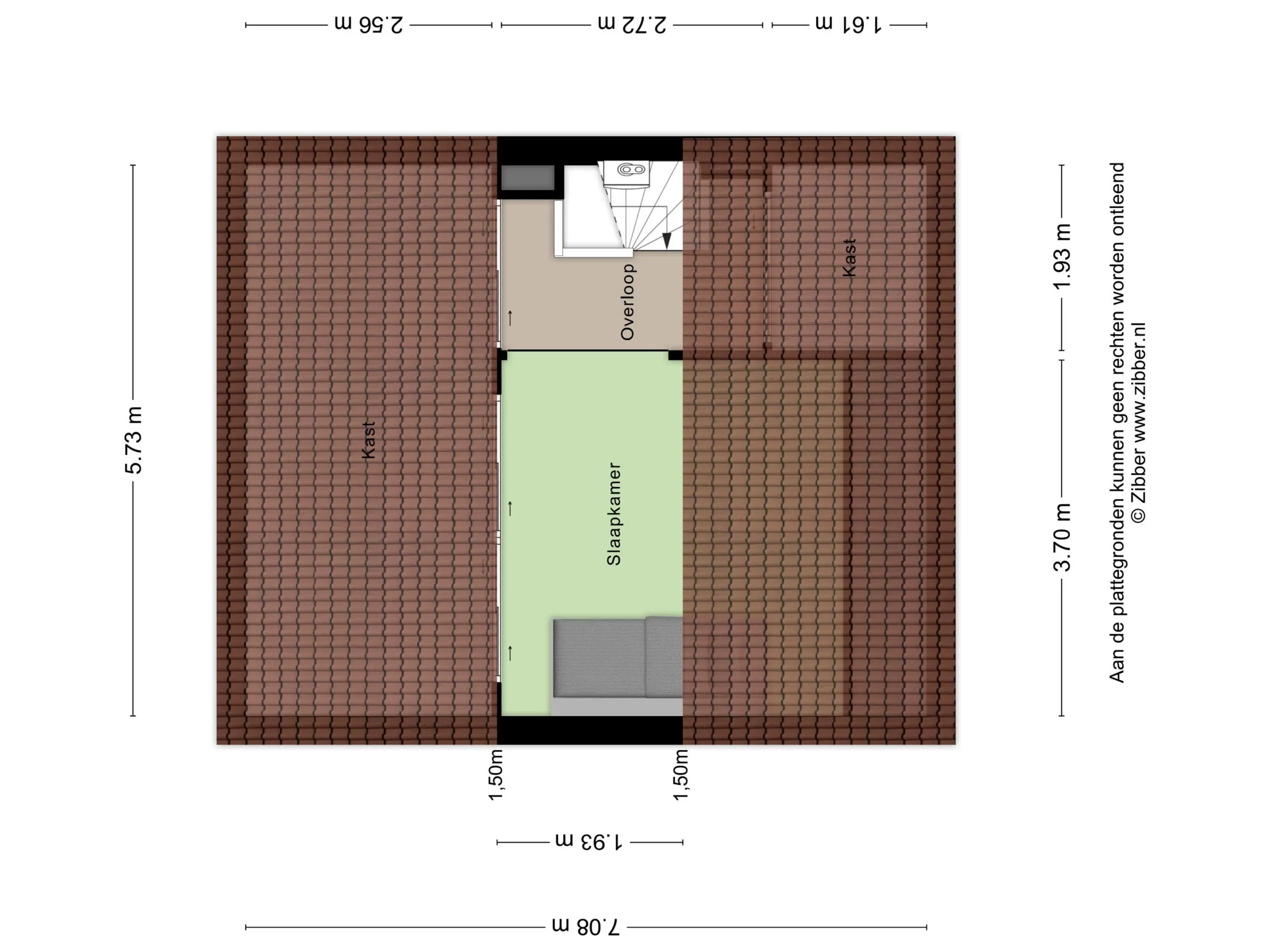
Tweede verdieping
De tweede verdieping is bereikbaar via een vaste trap. Hier vindt u de overloop met de cv-ketel en de omvormer van de zonnepanelen.
Daarnaast is er een ruime zolderkamer met dakraam, ideaal als extra slaapkamer, werk- of hobbyruimte.
Ligging
Sint-Annaland is een leuk dorp aan de Oosterschelde met een jachthaven, een uitnodigend zandstrandje en diverse winkelvoorzieningen binnen handbereik. Je kunt genieten van de rust en ruimte van het dorp, terwijl je toch centraal gelegen bent ten opzichte van nabijgelegen steden. Je hebt een goede verbindingsweg naar de A4 (Rotterdam-Antwerpen) en via de Oesterdam richting de A58 naar Goes en Middelburg. De Oosterschelde heeft wisselende getijden en fraaie vergezichten en biedt een schat aan mogelijkheden voor zeilen, duiken en zwemmen.
Interesse?
Mis deze kans niet en neem contact op met Leunis Makelaars voor een bezichtiging!
Burgemeester Baasstraat 9
SINT-ANNALAND
vraagprijs€ 310.000,- k.k.
Omschrijving
Kenmerken
Overdracht
- Vraagprijs
- € 310.000,- k.k.
- Status
- beschikbaar
- Aanvaarding
- in overleg
Bouw
- Soort woning
- woonhuis
- Soort woonhuis
- eengezinswoning
- Type woonhuis
- tussenwoning
- Aantal woonlagen
- 3
- Bouwjaar
- 1972
- Onderhoud binnen
- goed
- Onderhoud buiten
- goed
- Voorzieningen
- mechanische ventilatie, rolluiken, tv kabel, buitenzonwering, airconditioning, dakraam, glasvezel kabel, zonnepanelen
- Isolatie
- dakisolatie, vloerisolatie, dubbel glas
Energie
- Energielabel
- B
- Verwarming
- cv ketel
- Warm water
- cv ketel
- C.V.-ketel
- Nefit Proline HRC 24 (gas gestookt combiketel, uit 2009, eigendom)
Oppervlakten en inhoud
- Woonoppervlakte
- 86 m²
- Perceeloppervlakte
- 139 m²
- Inhoud
- 345 m³
- Inpandige ruimte oppervlakte
- 11 m²
- Bergruimte oppervlakte
- 17 m²
- Buitenruimte oppervlakte
- 1 m²
Indeling
- Aantal kamers
- 5
Buitenruimte
- Ligging
- in woonwijk
- Tuin
- achtertuin met een oppervlakte van 54 m² en is gelegen op het zuidwesten
Garage / Schuur / Berging
- Garage
- geen garage
- Parkeergelegenheid
- openbaar parkeren
- Schuur/berging
- vrijstaand steen
Locatie
Downloads

Neem contact op
Vul onderstaande gegevens in en wij nemen zo spoedig mogelijk contact met je op.
