ZOEKT U EEN GOEDE INVESTERING?
IN 2024 NETTO RENDEMENT VAN CIRCA 11%
Deze goed onderhouden (6-persoons) uitgebouwde recreatiewoning op 283 m² eigen grond combineert comfort maar ook ontspanning door de aanwezigheid van een jacuzzi en sauna. Gelegen aan de rand van recreatiepark Oud-Kempen, direct onderaan de dijk van de Oosterschelde, geniet je hier van een prachtige ligging én fijne voorzieningen.
Binnen tref je een nette keuken en luxe badkamer, een lichte woonkamer en drie slaapkamers. Buiten is het pas echt genieten: in de ruime tuin vind je een overkapping met een jacuzzi en sauna – jouw eigen wellnessplek!
Kortom: een plek waar je het hele jaar door kunt onthaasten en een woning die dankzij de luxe extra’s ook zeer populair is in de verhuur. Dat is ontspannen én slim investeren.
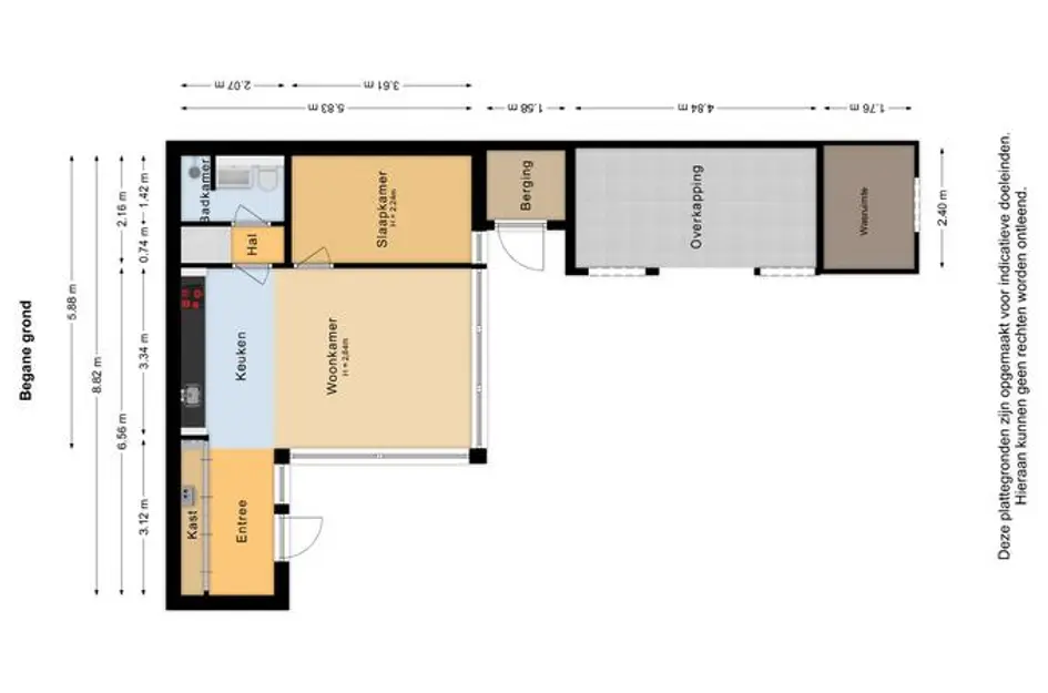
Begane grond
We stappen de woning binnen in een royale entree met een nette kastenwand. Hierachter vind je de meterkast, de CV-ketel (2019) en de aansluiting voor de wasmachine – praktisch én netjes weggewerkt. Deze entree is een mooie extra ruimte. De begane grond is afgewerkt met een moderne pvc-vloer. De open keuken is in 2019 vernieuwd en verkeert nog steeds in goede staat. Je vindt hier alles wat je nodig hebt: een koelkast, vaatwasser (2023), combimagnetron (2023) en een 4-pits inductiekookplaat met afzuigkap.
De woonkamer met vide is heerlijk licht dankzij ramen aan twee zijden, en praktisch ingedeeld met ruimte voor zowel een gezellige zithoek als een eethoek. Extra fijn: de trap is slim verplaatst naar de tussenhal, waardoor de woonkamer nog praktischer is. Ook is de woonkamer voorzien van airconditioning – perfect voor warme zomerdagen.
Op de begane grond bevindt zich verder een fijne tweepersoonsslaapkamer. In de tussenhal is de moderne badkamer te vinden, uitgerust met een luxe inloopdouche met massage-jetstralen, een wastafel met badmeubel en een designradiator. Natuurlijk is er ook mechanische ventilatie aanwezig. Tot slot brengt de trap in de tussenhal je naar de eerste verdieping.
Eerste verdieping
Boven aangekomen kom je direct in de eerste slaapkamer, waar het grote Velux-dakraam zorgt voor volop daglicht en een prettige sfeer. In deze kamer vind je ook de vlizotrap naar de bergzolder.
Via een deur loop je door naar de tweede slaapkamer, die dankzij de vide een leuk doorkijkje heeft naar de woonkamer beneden. Extra fijn: ook hier is gedacht aan comfort, met een eigen wastafel en badmeubel.
Net als beneden is ook deze verdieping keurig afgewerkt met een moderne pvc-vloer – strak, onderhoudsvriendelijk en sfeervol.
Tuin
De tuin bij deze recreatiewoning is verrassend ruim en biedt volop privacy. Of je nu wilt zonnen, ontspannen met een goed boek of gezellig wilt dineren met vrienden of familie – hier kan het allemaal in alle rust en comfort.
Wat deze tuin écht bijzonder maakt, is de stijlvolle en ruime overkapping. Hier vind je een jacuzzi én sauna – een fijne wellnessplek, gewoon in de achtertuin! En met genoeg ruimte voor een comfortabele loungehoek kun je hier het hele jaar door genieten, ongeacht het weer.
Aan beide zijden van de overkapping zijn praktische bergingen geplaatst – perfect voor het opbergen van tuinkussens, gereedschap of fietsen.
De woning is gelegen op een kleinschalig recreatiepark Oud-Kempen aan de rand van Stavenisse op korte afstand van een strandje (Oosterschelde) met de focus op rust. Er zijn diverse faciliteiten zoals een zwembad, restaurant, tennisbaan en een speeltuin.
Recreatiepark Oud-Kempen bevindt zich op het eiland Tholen en bestaat uit 116 particuliere vakantiewoningen en biedt volop rust, ruimte en ontspanning. Beschut achter een stevige dijk, is het park beschermd tegen het water van de Oosterschelde. De omgeving, met zijn uitgestrekte polders, weidse wateren en serene stilte, is een lust voor natuurliefhebbers. Hoewel de drukte van de Randstad niet ver weg is, voelt het hier als een compleet andere wereld. In de omgeving zijn er tal van leuke activiteiten te doen, en er zijn meerdere restaurants om heerlijk te eten.
Het dorp Stavenisse ligt op de kop van het eiland Tholen. Je vaart er vanaf de Oosterschelde zó de haven van het dorp binnen. Het is een klein maar gezellig dorp voor de rustzoeker en de watersporter. U kunt hier heerlijk zwemmen, surfen, duiken, zeilen of suppen. Het eiland Tholen kunt u ook heel goed per fiets ontdekken. De onderwaterwereld van de Oosterschelde behoort tot de mooiste van Nederland en trekt vele watersporters.
Bergen op Zoom is binnen 25 minuten bereikbaar en via de A-4 ben je in circa 50 minuten in Rotterdam of Breda.
De jaarlijkse parkbijdrage bedraagt € 1914,- (2025)
De woning wordt gestoffeerd en gemeubileerd opgeleverd.
Voor meer informatie of het plannen van een bezichtiging, neem gerust contact op met Leunis Makelaars. We helpen je graag verder!
Buurtweg 99
STAVENISSE
koopsom€ 175.000,- k.k.
Omschrijving
Kenmerken
Overdracht
- Koopsom
- € 175.000,- k.k.
- Status
- beschikbaar
- Aanvaarding
- in overleg
Bouw
- Soort woning
- woonhuis
- Soort woonhuis
- eengezinswoning
- Type woonhuis
- tussenwoning
- Aantal woonlagen
- 3
- Bouwjaar
- 1973
- Recreatiewoning
- Ja
- Permanente bewoning
- niet toegestaan
- Onderhoud binnen
- redelijk_tot_goed
- Onderhoud buiten
- redelijk_tot_goed
- Voorzieningen
- mechanische ventilatie, airconditioning, jacuzzi, dakraam, sauna, natuurlijke ventilatie
- Isolatie
- dakisolatie, dubbel glas
Energie
- Energielabel
- C
- Verwarming
- cv ketel
- Warm water
- cv ketel
- C.V.-ketel
- Intergas Kombi Kompakt HRE 28/24A (gas gestookt combiketel, uit 2019, eigendom)
Oppervlakten en inhoud
- Woonoppervlakte
- 55 m²
- Perceeloppervlakte
- 283 m²
- Inhoud
- 219 m³
- Inpandige ruimte oppervlakte
- 1 m²
- Bergruimte oppervlakte
- 14 m²
- Buitenruimte oppervlakte
- 2 m²
Indeling
- Aantal kamers
- 4
Buitenruimte
- Ligging
- aan rustige weg, beschutte ligging, buiten bebouwde kom
- Tuin
- achtertuin met een oppervlakte van 234 m² en is gelegen op het noordwesten
Garage / Schuur / Berging
- Garage
- geen garage
- Parkeergelegenheid
- openbaar parkeren
- Schuur/berging
- vrijstaand hout
Locatie
Downloads

Neem contact op
Vul onderstaande gegevens in en wij nemen zo spoedig mogelijk contact met je op.
