Op 20 meter afstand van Nationaal Park Oosterschelde ligt dit kleinschalige park "Aan de Oever". Hier komen watersporters, rustzoekers, duikers, fietsers en wandelaars volledig aan bod.
Deze twee-onder-een-kap woning is gelegen op riant perceel (378 m²) eigen grond en is voorzien van een heerlijke tuin op het westen gelegen met een fraaie houten berging.
De woning beschikt over een royale woonkamer, een open keuken met bijkeuken en toilet, twee slaapkamers en een nette badkamer. Bovendien is de woning grotendeels voorzien van rolluiken.
De voorzieningen van het dorp, zoals een MCD-supermarkt en gezellige terrasjes, liggen op korte afstand.
Deze recreatiewoning is niet alleen een fijne plek om zelf van te genieten, maar biedt ook uitstekende verhuurmogelijkheden, waardoor het ook een slimme investering als beleggingsobject is!
Begane grond
Via de ruime hal bereik je de woning welke toegang geeft tot de eetkamer / open keuken. De open keuken, uitgevoerd in een hoekopstelling, is uitgerust met diverse inbouwapparatuur, waaronder een koelkast en een 4-pits gaskookplaat met afzuigkap. Vanuit de keuken zijn zowel de meterkast als de bijkeuken toegankelijk. De bijkeuken biedt extra bergruimte en is voorzien van een aansluiting voor de wasmachine. Vanuit de bijkeuken is ook het toilet bereikbaar, dat is uitgerust met een fonteintje.
De woonkamer is lekker ruim en licht en geeft via de schuifpui toegang naar de heerlijke vrije tuin. Verder is de woonkamer voorzien van een balkenplafond. De betonnen vloer is afgewerkt met plavuizen.
Eerste verdieping
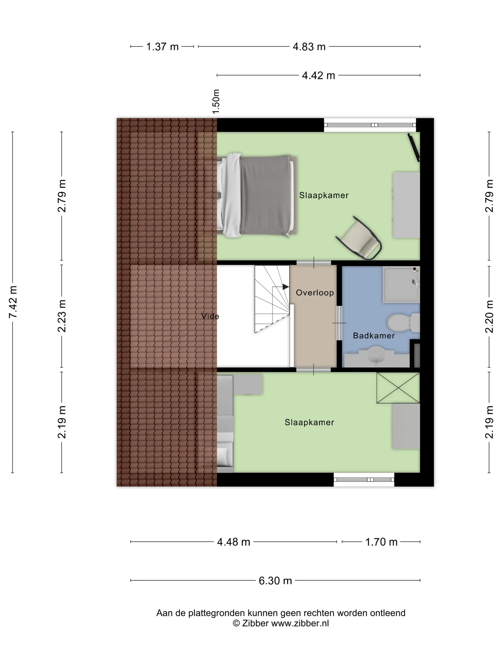
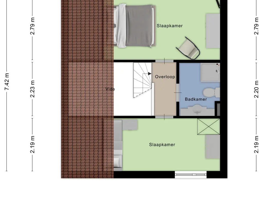
Op de eerste verdieping bevinden zich twee slaapkamers en de badkamer. De volledig betegelde badkamer is praktisch ingedeeld en uitgerust met een douchecabine, een tweede toilet en een wastafelmeubel.
Tweede verdieping
Bergzolder te bereiken via vlizotrap hier is de CV-ketel opgesteld.
Tuin
De achtertuin is gelegen op het Westen en is voorzien van sierbestrating, gazon en een vrij achterom. Dankzij de gunstige ligging kun je hier op elk moment van de dag kiezen voor een zonnig of juist schaduwrijk plekje. In de achtertuin staat een ruime berging, perfect voor het opbergen van allerhande spullen.
De woning wordt volledig gemeubileerd & gestoffeerd aangeboden.
Parkkosten: circa € 965,- per jaar.
Kosten VVE: € 50,- per jaar.
Let op; Er is bij deze woning geen Vragenlijst deel B & Lijst van zaken aanwezig!
Stavenisse
Het dorp Stavenisse ligt op de kop van het eiland Tholen. Je vaart er vanaf de Oosterschelde zó de haven van het dorp binnen. Het is een klein maar gezellig dorp voor de rustzoeker en de watersporter. Heerlijk zwemmen, surfen, duiken, zeilen of suppen, alles kan! De onderwaterwereld van de Oosterschelde behoort tot de mooiste van Nederland en trekt vele watersporters. Verder zijn er diverse winkels en horecagelegenheden. Bergen op Zoom is binnen 25 minuten bereikbaar en via de A-4 ben je in circa 50 minuten in Rotterdam of Breda.
Mis deze kans niet en neem contact op met Leunis Makelaars voor een bezichtiging!
Dijkweg 26
STAVENISSE
vraagprijs€ 198.000,- k.k.
Omschrijving
Kenmerken
Overdracht
- Vraagprijs
- € 198.000,- k.k.
- Status
- beschikbaar
- Aanvaarding
- in overleg
Bouw
- Soort woning
- woonhuis
- Soort woonhuis
- eengezinswoning
- Type woonhuis
- twee onder een kapwoning
- Aantal woonlagen
- 3
- Bouwjaar
- 1994
- Recreatiewoning
- Ja
- Permanente bewoning
- niet toegestaan
- Onderhoud binnen
- redelijk_tot_goed
- Onderhoud buiten
- redelijk_tot_goed
- Voorzieningen
- mechanische ventilatie, rolluiken, tv kabel, schuifpui
- Isolatie
- volledig geisoleerd
Energie
- Energielabel
- B
- Verwarming
- cv ketel
- Warm water
- cv ketel
- C.V.-ketel
- (gas gestookt combiketel, eigendom)
Oppervlakten en inhoud
- Woonoppervlakte
- 81 m²
- Perceeloppervlakte
- 378 m²
- Inhoud
- 299 m³
- Bergruimte oppervlakte
- 7 m²
Indeling
- Aantal kamers
- 3
Buitenruimte
- Ligging
- aan rustige weg, buiten bebouwde kom, landelijk gelegen
- Tuin
- achtertuin met een oppervlakte van 220 m² en is gelegen op het westen
Garage / Schuur / Berging
- Garage
- geen garage
- Parkeergelegenheid
- op afgesloten terrein
- Schuur/berging
- vrijstaand hout
Locatie
Downloads

Neem contact op
Vul onderstaande gegevens in en wij nemen zo spoedig mogelijk contact met je op.
