Op 20 meter afstand van Nationaal Park Oosterschelde ligt dit kleinschalige park "Aan de Oever". Hier komen watersporters, rustzoekers, duikers, fietsers en wandelaars volledig aan bod.
Deze twee-onder-een-kap woning is gelegen op 217 m² eigen grond en is voorzien van een oprit voor meerdere auto's en een houten berging.
De woning beschikt over een royale woonkamer, een open keuken, drie slaapkamers, een nette badkamer en een ruime tuin met praktische berging. Bovendien is de woning grotendeels voorzien van rolluiken.
De voorzieningen van het dorp, zoals een MCD-supermarkt en gezellige terrasjes, liggen op korte afstand.
Deze recreatiewoning is niet alleen een fijne plek om zelf van te genieten, maar biedt ook uitstekende verhuurmogelijkheden, waardoor het ook een slimme investering als beleggingsobject is!
Begane grond
Via de ruime hal bereik je de woning welke toegang geeft tot de eetkamer / open keuken. De open keuken, uitgevoerd in een hoekopstelling, is uitgerust met diverse inbouwapparatuur, waaronder een koelkast, vaatwasser, oven, magnetron en een 4-pits gaskookplaat met afzuigkap. Vanuit de keuken zijn zowel de meterkast als de bijkeuken toegankelijk. De bijkeuken biedt extra bergruimte en is voorzien van een aansluiting voor de wasmachine. Vanuit de bijkeuken is ook het toilet bereikbaar, dat is uitgerust met een fonteintje.
De woonkamer is lekker ruim en licht en geeft via de openslaande deuren toegang naar de tuin. Verder is de woonkamer voorzien van een balkenplafond en een schouwpartij met een houtkachel. De betonnen vloer is afgewerkt met plavuizen.
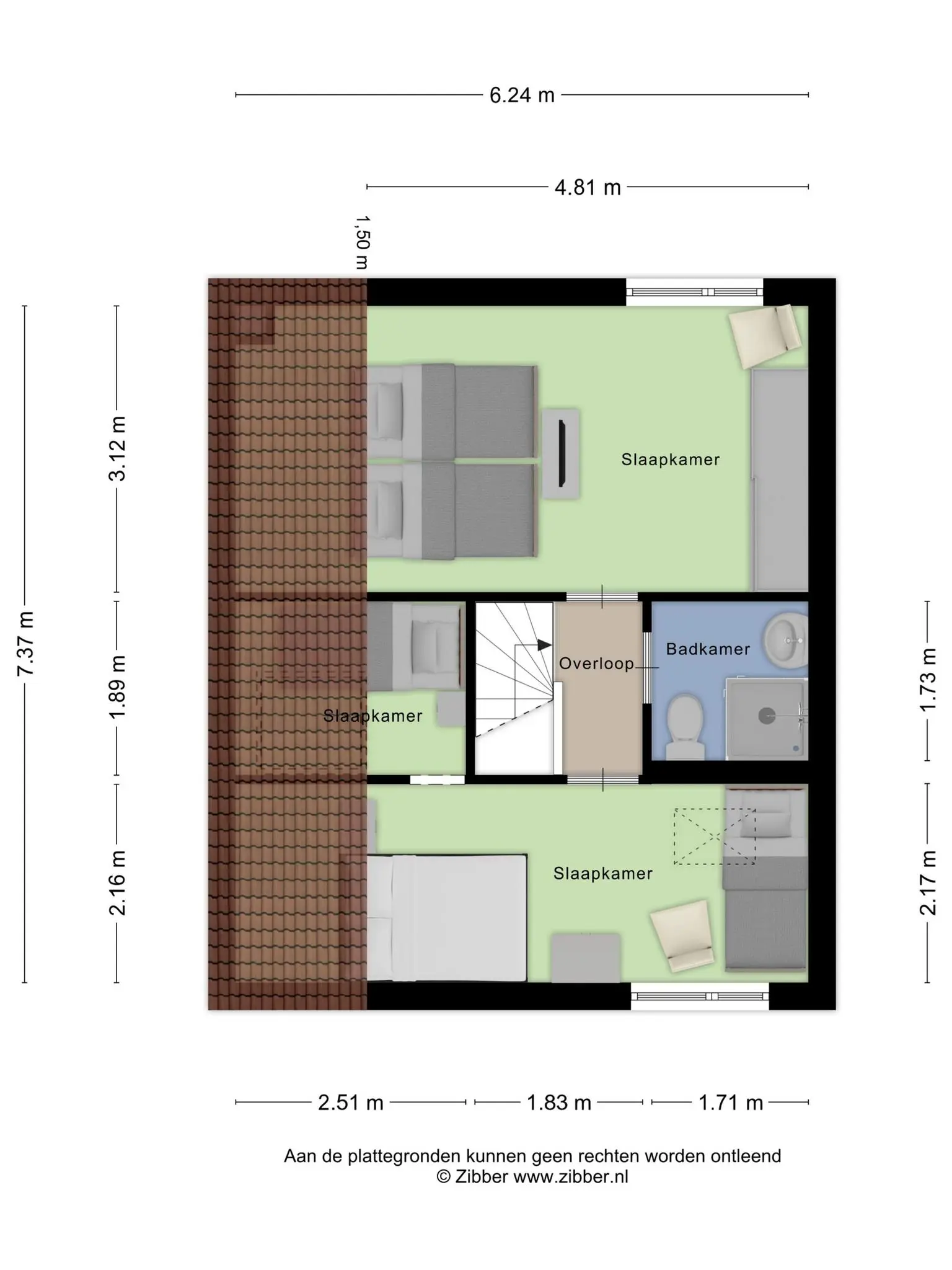
Eerste verdieping
Op de eerste verdieping bevinden zich drie slaapkamers en de badkamer. De kleinste slaapkamer is bereikbaar via een van de andere kamers. De volledig betegelde badkamer is praktisch ingedeeld en uitgerust met een douchecabine, een tweede toilet en een wastafel.
Tweede verdieping
Bergzolder te bereiken via vlizotrap hier is de CV-ketel (2018) opgesteld.
Tuin
De achtertuin is gelegen op het Noord-Westen en is voorzien van sierbestrating en een vrij achterom. Dankzij de gunstige ligging kun je hier op elk moment van de dag kiezen voor een zonnig of juist schaduwrijk plekje. In de achtertuin staat een ruime berging, perfect voor het opbergen van allerhande spullen.
De woning wordt volledig gemeubileerd aangeboden.
Parkkosten: circa € 965,- per jaar.
Kosten VVE: € 50,- per jaar.
Stavenisse
Het dorp Stavenisse ligt op de kop van het eiland Tholen. Je vaart er vanaf de Oosterschelde zó de haven van het dorp binnen. Het is een klein maar gezellig dorp voor de rustzoeker en de watersporter. Heerlijk zwemmen, surfen, duiken, zeilen of suppen, alles kan! De onderwaterwereld van de Oosterschelde behoort tot de mooiste van Nederland en trekt vele watersporters. Verder zijn er diverse winkels en horecagelegenheden. Bergen op Zoom is binnen 25 minuten bereikbaar en via de A-4 ben je in circa 50 minuten in Rotterdam of Breda.
Mis deze kans niet en neem contact op met Leunis Makelaars voor een bezichtiging!
Dijkweg 34
STAVENISSE
Ook jouw woning succesvol verkopen? Neem dan contactmet ons op
Gratis waardeadviesOmschrijving
Kenmerken
Overdracht
- Status
- verkocht
- Aanvaarding
- in overleg
Bouw
- Soort woning
- woonhuis
- Soort woonhuis
- eengezinswoning
- Type woonhuis
- twee onder een kapwoning
- Aantal woonlagen
- 3
- Bouwjaar
- 2000
- Recreatiewoning
- Ja
- Permanente bewoning
- niet toegestaan
- Onderhoud binnen
- redelijk
- Onderhoud buiten
- redelijk
- Voorzieningen
- mechanische ventilatie, rolluiken, tv kabel, natuurlijke ventilatie
- Isolatie
- volledig geisoleerd
Energie
- Energielabel
- A
- Verwarming
- cv ketel, houtkachel
- Warm water
- cv ketel
- C.V.-ketel
- Remeha Tzerra Ace 28C (gas gestookt combiketel, uit 2018, eigendom)
Oppervlakten en inhoud
- Woonoppervlakte
- 85 m²
- Perceeloppervlakte
- 217 m²
- Inhoud
- 313 m³
- Inpandige ruimte oppervlakte
- 2 m²
Indeling
- Aantal kamers
- 4
Buitenruimte
- Ligging
- aan water, aan park, aan rustige weg, buiten bebouwde kom
- Tuin
- achtertuin met een oppervlakte van 94 m² en is gelegen op het noordwesten
Garage / Schuur / Berging
- Garage
- geen garage
- Parkeergelegenheid
- op eigen terrein
- Schuur/berging
- vrijstaand hout
Locatie
Downloads

Neem contact op
Vul onderstaande gegevens in en wij nemen zo spoedig mogelijk contact met je op.
