Halfvrijstaande woning met eigen oprit, royale tuin en verrassend veel ruimte in centrum Tholen
Wonen in het hart van Tholen met je auto op eigen oprit, een vrije achterom én een royale, verzorgde achtertuin. Deze halfvrijstaande woning (bouwjaar 1889) combineert karakter met comfort: 91 m² woonoppervlak op 195 m² eigen grond, energielabel D, 10 zonnepanelen en een nette afwerking. Nu ingericht met 2 slaapkamers (mogelijkheid tot realiseren 3e slaapkamer), met dus volop mogelijkheden. De ruime badkamer op de eerste etage en praktische bergruimte maken het plaatje compleet. Gewenste oplevering: juni 2026.
Kernpunten
Halfvrijstaande woning met eigen oprit in het centrum van Tholen
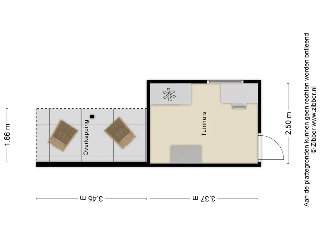
Vrij achterom en verrassend ruime achtertuin met luxe (hobby)berging + aangebouwde berging
91 m² woonoppervlakte, perceel 195 m² eigen grond
Energielabel D en 10 PV-panelen
Woonkamer met airco en rolluiken, nette afwerking
Keuken 2005, uitgebreid in 2015, voorzien van alle gemakken
2 slaapkamers, eenvoudig weer 3 te realiseren
Badkamer (2005) met toilet, douchecabine en badmeubel
Rolluiken op de eerste etage, zolder via vlizotrap
Gewenste oplevering juni 2026
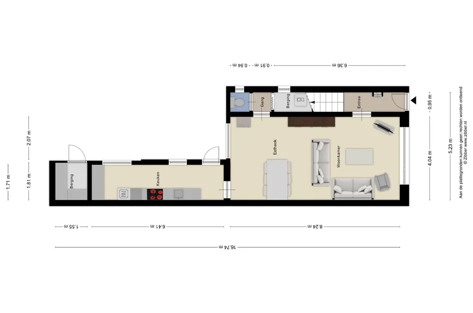
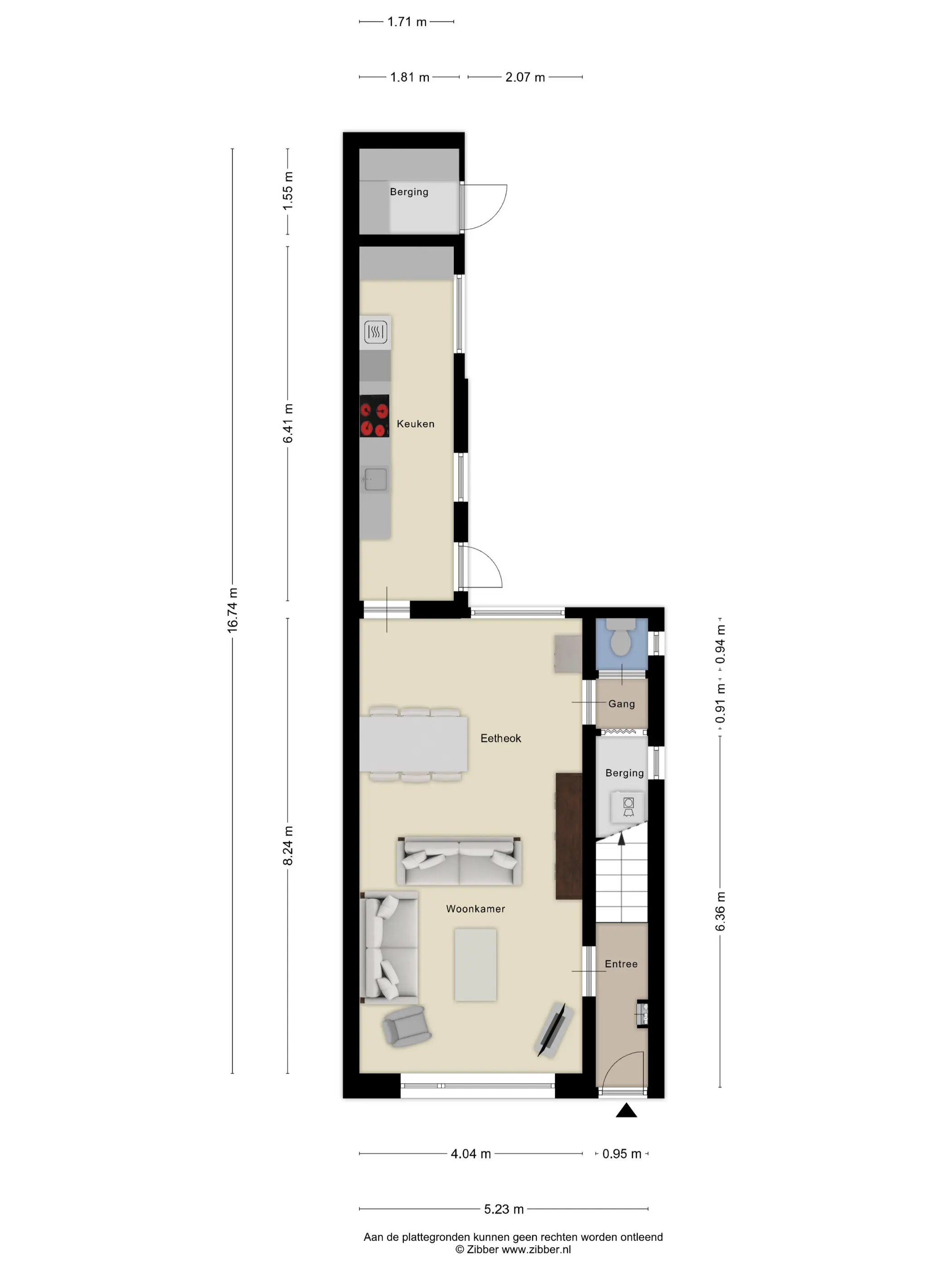
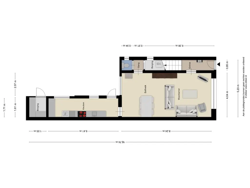
Begane grond
Entree in de hal met meterkast en trapopgang naar de eerste etage. De zeer ruime woonkamer valt op door de nette afwerking, airco en rolluiken – fijn voor comfort in elk seizoen.
Vanuit de woonkamer bereik je een tussenhal met toegang tot het toilet en de wasruimte.
De keuken (2005, uitgebreid in 2015) is ruim opgezet en uitgerust met de gebruikelijke inbouwapparatuur; ideaal voor dagelijks koken en uitgebreid tafelen.
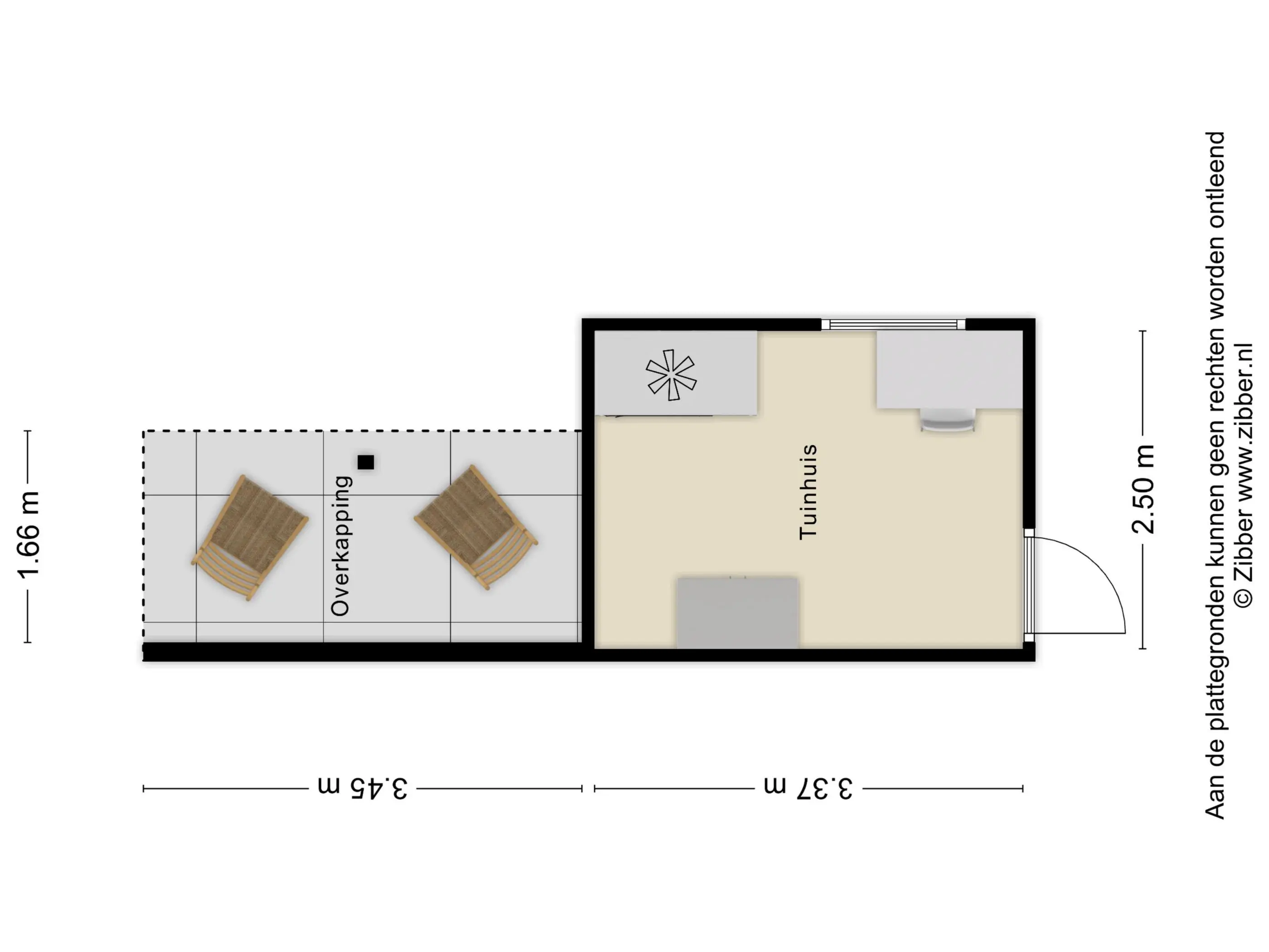
Tuin, bergingen & achterom
De grote, verzorgde achtertuin is ook vrij toegankelijk vanaf de voorzijde – praktisch met fietsen of tuinbenodigdheden. In de tuin staat een luxe berging die zich uitstekend leent als hobbykamer/atelierruimte.
Achter de keuken is bovendien een aangebouwde berging aanwezig. De tuin is ruim bemeten en verzorgd aangelegd: een plek om het hele jaar door van te genieten.
Eerste verdieping
De overloop geeft toegang tot twee slaapkamers en de badkamer. De grote slaapkamer beschikt over airco;
de smallere, diepe slaapkamer kan – net als voorheen – relatief eenvoudig in twee kamers worden verdeeld, zodat je weer drie slaapkamers creëert.
De badkamer (2005) is netjes en voorzien van toilet, douchecabine en badmeubel. De eerste etage heeft rolluiken.
Zolder
Via een vlizotrap op de overloop bereik je de ruime zolder: ideaal voor extra opslag of het wegzetten van seizoensspullen.
Tholen biedt een sfeervol stadscentrum met gezellige winkels, restaurants en cafés. Bovendien is de woning gunstig gelegen ten opzichte van uitvalswegen, waardoor je eenvoudig toegang hebt tot omliggende steden en dorpen.
Bergen op Zoom is binnen 20 minuten bereikbaar, Breda binnen 40 minuten.
Bijzonderheden & oplevering
10 zonnepanelen
Energielabel D
Bouwjaar 1889
Eigen oprit en vrije achterom
Oplevering gewenst in juni 2026
Nieuwsgierig? Wij kunnen ons voorstellen dat je deze woning wilt bezichtigen, bel naar Leunis Makelaars voor een afspraak!
Doelweg 13
THOLEN
vraagprijs€ 295.000,- k.k.
Omschrijving
Kenmerken
Overdracht
- Vraagprijs
- € 295.000,- k.k.
- Status
- beschikbaar
- Aanvaarding
- in overleg
Bouw
- Soort woning
- woonhuis
- Soort woonhuis
- eengezinswoning
- Type woonhuis
- halfvrijstaande woning
- Aantal woonlagen
- 3
- Bouwjaar
- 1889
- Onderhoud binnen
- goed
- Onderhoud buiten
- goed
- Voorzieningen
- mechanische ventilatie, rolluiken, tv kabel, airconditioning, zonnepanelen
- Isolatie
- muurisolatie, grotendeels dubbelglas
Energie
- Energielabel
- D
- Verwarming
- cv ketel
- Warm water
- cv ketel
- C.V.-ketel
- Nefit Trendline HRC 25 (gas gestookt combiketel, uit 2016, eigendom)
Oppervlakten en inhoud
- Woonoppervlakte
- 91 m²
- Perceeloppervlakte
- 195 m²
- Inhoud
- 346 m³
- Inpandige ruimte oppervlakte
- 7 m²
- Bergruimte oppervlakte
- 8 m²
Indeling
- Aantal kamers
- 3
Buitenruimte
- Ligging
- in centrum
- Tuin
- achtertuin met een oppervlakte van 79 m² en is gelegen op het noordwesten
Garage / Schuur / Berging
- Garage
- geen garage
- Parkeergelegenheid
- op eigen terrein
- Schuur/berging
- vrijstaand hout
Locatie
Downloads

Neem contact op
Vul onderstaande gegevens in en wij nemen zo spoedig mogelijk contact met je op.
