Beoordelingen
9,0
Langeweg 7

Langeweg 7

SINT-ANNALAND

Ook jouw woning succesvol verkopen? Neem dan contactmet ons op

Gratis waardeadvies

Omschrijving

Dit fantastische object is absoluut een must-see voor wie op zoek is naar veel ruimte en potentie. Het betreft een groot perceel van circa 7.073 m2, dat niet alleen ruimte biedt voor een ruime tuin, maar ook het splitsen tot twee kavels behoort tot de opties doordat je op de plaats van de schuur nog een extra woning mag bouwen.
De woning is ruim qua opzet, woonoppervlakte 143 m2, is netjes onderhouden en beschikt over energielabel C. Er zijn nu 3 zeer ruime slaapkamers, die eenvoudig omgebouwd kunnen worden tot meer. De 2e verdieping is nu in gebruik als bergzolder en bereikbaar via een vlizotrap, door de stahoogte zou je hier nog extra kamers kunnen realiseren.
Daarnaast vind je op het terrein een grote schuur van 124 m², die talloze mogelijkheden biedt, van opslagruimte tot werkplaats of hobbyruimte.
Dankzij de open ligging aan de rand van het dorp zit je lekker vrij, terwijl je toch dicht bij alle voorzieningen bent.

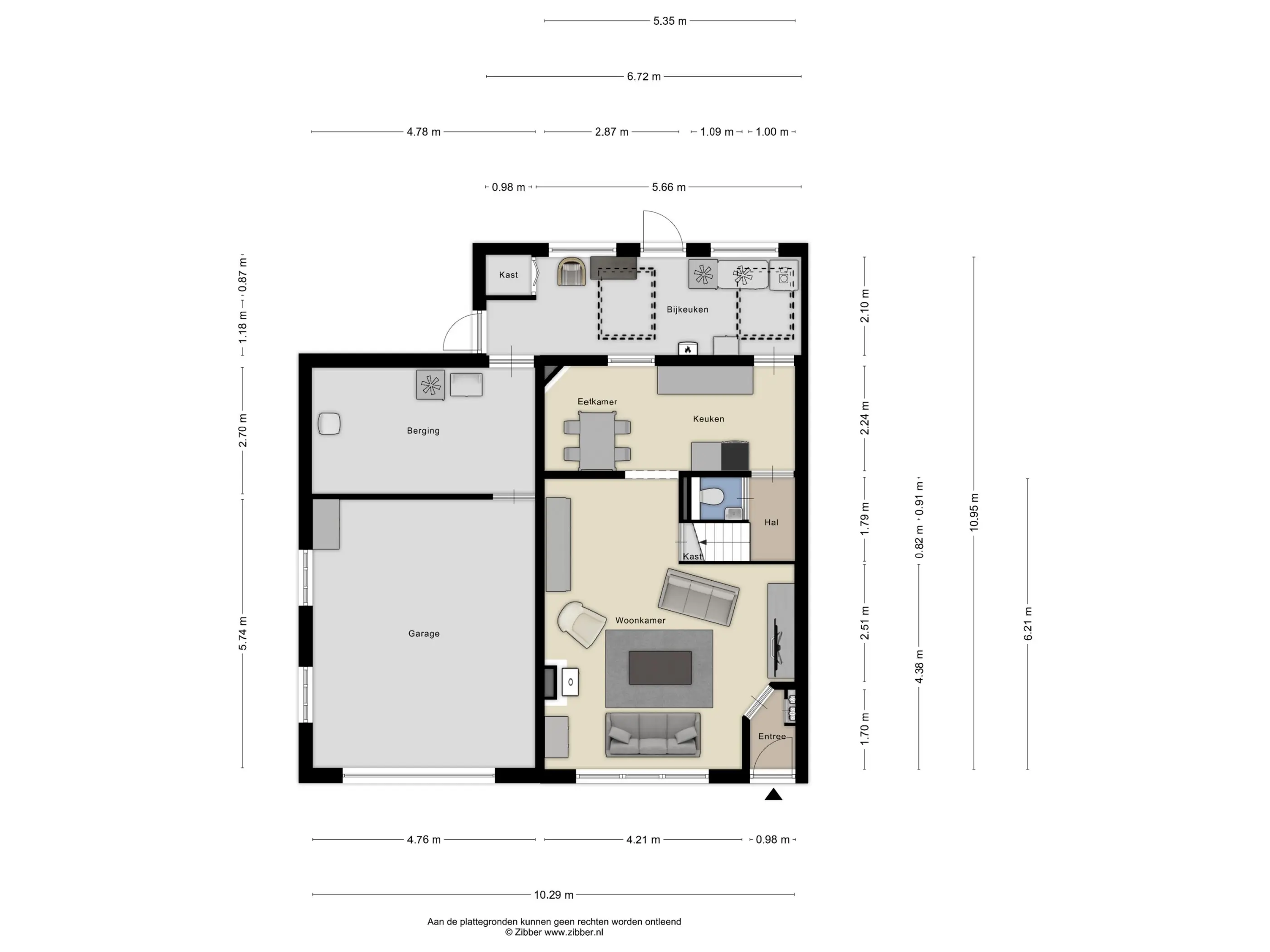
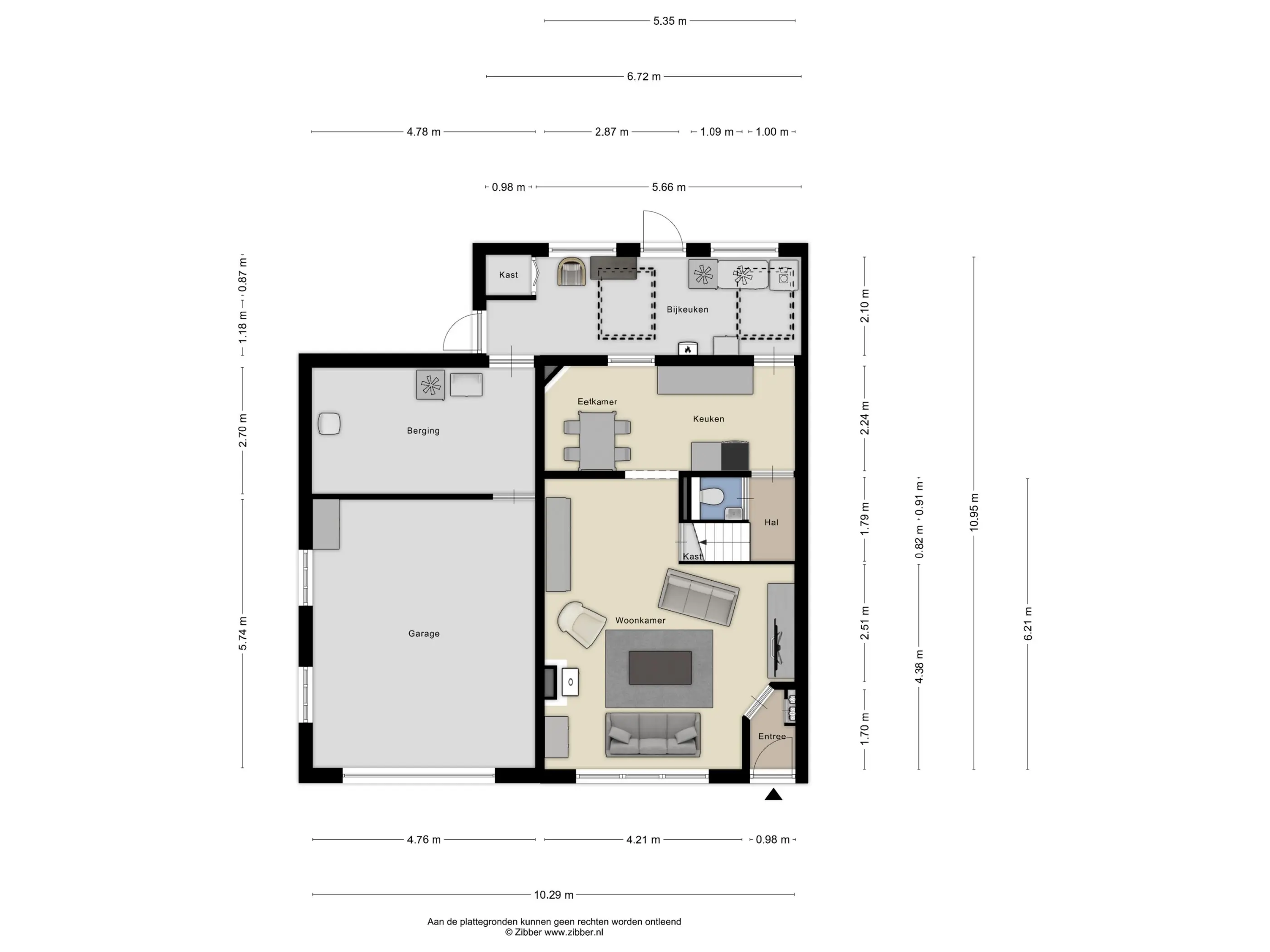
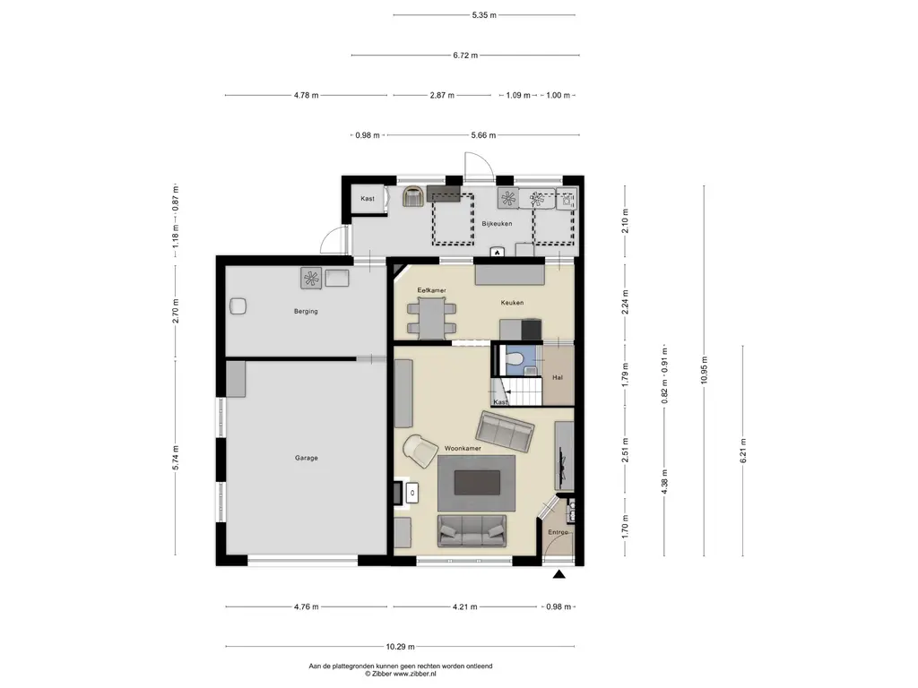
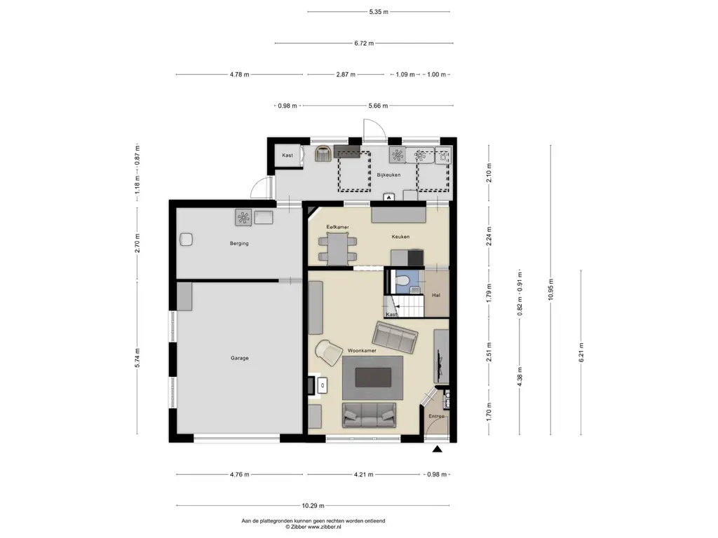
Begane grond
Bij binnenkomst kom je via de entree met meterkast in de lichte, ruime woonkamer. Het grote raam aan de voorzijde zorgt voor veel natuurlijk licht. De marmeren schouw voegt extra sfeer toe aan de ruimte. De vloer is voorzien van een pvc-afwerking die doorloopt naar de keuken. De half open keuken is netjes onderhouden en praktisch ingericht met een rechte opstelling. Hij is uitgerust met een granieten werkblad, een vaatwasser, oven, en een 4-pits keramische kookplaat met afzuigkap. Hier is ook voldoende ruimte voor een eethoek. Vanuit de keuken kom je in de bijkeuken, die ruim en licht is dankzij de grote ramen. Hier vind je de CV-ketel (2019), aansluitingen voor wasmachine en droger, een vaste kast, een deur die toegang biedt tot de tuin en een deur naar de zijkant van de woning. Ook is er in de bijkeuken volop ruimte voor een extra koelkast of vriezer.
Vanuit de bijkeuken kun je verder naar een grote berging. Via de deze berging kun je tevens de garage bereiken.
De garage is zeer ruim (4,76 m breed en 5,74 m diep) en voorzien van een elektrisch bedienbare paneeldeur, elektra en een wateraansluiting. De garage is van een dusdanig formaat dat er naast een grote auto nog volop ruimte is. Kortom, je zult bij deze woning niet snel tekortkomen aan opbergruimte!
Via de keuken kom je in de tussenhal waar het (hang)toilet met fonteintje gesitueerd is. Het toilet is voorzien van mechanische ventilatie. Ook vind je hier de trapopgang naar de eerste verdieping.

Eerste verdieping
De overloop geeft toegang tot drie zeer ruime slaapkamers, die voldoende mogelijkheden bieden om de indeling te veranderen en eventueel extra slaapkamers te creëren. Op de overloop bevindt zich ook de vlizotrap naar de tweede verdieping.
De slaapkamer aan de achterzijde is bijzonder groot en licht dankzij de grote dakkapel. Deze kamer is uitgerust met een wastafel.
De twee slaapkamers aan de voorzijde zijn eveneens licht door de grote dakkapellen en bieden veel ruimte. Eén van deze slaapkamers heeft ook een wastafel. De andere slaapkamer aan de voorzijde heeft toegang tot de ruime badkamer en een apart toilet (sanibroyeur).
De nette badkamer is ruim en licht dankzij het raam. Deze is voorzien van een douchecabine, ligbad, badmeubel, designradiator en mechanische ventilatie. Bovendien biedt de badkamer veel opbergruimte door de twee vaste kasten.

Tweede verdieping
De tweede verdieping heeft stahoogte, waardoor het een fijne, ruime ruimte is die veel opbergmogelijkheden biedt. Daarnaast heeft deze verdieping potentie om omgebouwd te worden tot extra kamers.

Tuin
De siertuin tegen de achtergevel van het huis (met elektrische zonwering) is voorzien van sierbestrating en siertuin en biedt volop mogelijkheden om in alle privacy zowel van de zon als schaduw te genieten. Een groot gedeelte van het overige terrein is voorzien van bestrating. Hierachter bevindt zich een enorm weiland.
Op het gedeelte waar de extra bouwkavel is te realiseren, bevindt zich een grote (5,64 m x 21,97 m) schuur. Deze schuur is voorzien van een betonvloer, een handmatig bedienbare paneeldeur, een loopdeur en is voorzien van een bergzolder.

Sint-Annaland
Sint-Annaland is een leuk dorp aan de Oosterschelde met een jachthaven, een uitnodigend zandstrandje en diverse winkelvoorzieningen binnen handbereik. Je kunt genieten van de rust en ruimte van het dorp, terwijl je toch centraal gelegen bent ten opzichte van nabijgelegen steden. Je hebt een goede verbindingsweg naar de A4 (Rotterdam-Antwerpen) en via de Oesterdam richting de A58 naar Goes en Middelburg. De Oosterschelde heeft wisselende getijden en fraaie vergezichten en biedt een schat aan mogelijkheden voor zeilen, duiken en zwemmen.

Dit unieke object biedt talloze mogelijkheden. Ons team van Leunis Makelaars staat voor je klaar om deze samen met jou te ontdekken tijdens een bezichtiging!
Lees meer

Kenmerken

Overdracht
Status
verkocht
Aanvaarding
in overleg
Bouw
Soort woning
woonhuis
Soort woonhuis
eengezinswoning
Type woonhuis
halfvrijstaande woning
Aantal woonlagen
2
Bouwjaar
1930
Onderhoud binnen
redelijk
Onderhoud buiten
redelijk
Voorzieningen
mechanische ventilatie, tv kabel, buitenzonwering
Isolatie
dakisolatie, muurisolatie, gedeeltelijk dubbel glas
Energie
Energielabel
C
Verwarming
cv ketel
Warm water
cv ketel
C.V.-ketel
Remeha Tzerra ACE 28C (gas gestookt combiketel, uit 2019, eigendom)
Oppervlakten en inhoud
Woonoppervlakte
143 m²
Perceeloppervlakte
7.303 m²
Inhoud
760 m³
Inpandige ruimte oppervlakte
69 m²
Bergruimte oppervlakte
124 m²
Indeling
Aantal kamers
4
Buitenruimte
Ligging
vrij uitzicht, open ligging
Tuin
achtertuin met een oppervlakte van 6660 m² en is gelegen op het noordoosten
Garage / Schuur / Berging
Garage
inpandige garage
Parkeergelegenheid
op eigen terrein
Schuur/berging
vrijstaand hout

Foto's

Plattegronden

Locatie

Downloads

Neem contact op

Vul onderstaande gegevens in en wij nemen zo spoedig mogelijk contact met je op.

Naam *
Telefoonnummer *
E-mailadres *
Bericht *