Vrijstaand wonen met veel leefruimte – welkom in Scherpenisse!
Aan de rand van het gezellige dorp Scherpenisse, op een rustige locatie, staat deze stijlvolle vrijstaande woning uit 2001. De woning is voorzien van fraai metselwerk wat in combinatie met de stenen zorgt voor een authentieke uitstraling.
Via een bruggetje bereik je de woning, binnen wacht je een verrassend ruim en comfortabel thuis. Er zijn nu drie slaapkamers en een royale badkamer, maar de ruime tweede verdieping biedt volop mogelijkheden om het aantal kamers uit te breiden naar vijf! Verder vind je nog een werk/hobby kamer op de begane grond en een heerlijke tuin waar je in alle privacy van het buitenleven geniet. En met energielabel A zit je ook qua duurzaamheid helemaal goed.
Een huis dat direct goed voelt– klaar voor een nieuwe eigenaar.
Begane grond
Bij binnenkomst in deze sfeervolle woning stappen we een ruime en uitnodigende hal binnen. De hal is afgewerkt met plavuizen en biedt toegang tot de fraaie vaste trap naar de eerste verdieping, de meterkast, een (hang)toilet met fonteintje en deuren naar zowel de gezellige woonkamer, woonkeuken en een extra kamer.
De volledige benedenverdieping is voorzien van comfortabele vloerverwarming en plavuizen: warm aan de voeten én praktisch in gebruik!
Aan de voorzijde van de woning ligt de gezellige woonkamer. Dankzij de grote raampartijen, het balkenplafond en de open haard met inzethaard is dit een fijne, lichte ruimte met een warme uitstraling.
Direct grenzend aan de woonkamer vind je een fijne extra kamer – ideaal als thuiswerkplek, hobby- of speelruimte of leeshoek. Ook hier zorgen de houten balken en het lichtinval voor een prettige omgeving.
En dan de landelijke woonkeuken! De keuken bevindt zich aan de achterzijde van de woning en is een echte leefkeuken: ruim, licht en perfect voor gezellige eetmomenten samen. De sfeervolle balken aan het plafond geven karakter, terwijl de keuken zelf van alle gemakken is voorzien: een koelkast, vaatwasser, inductiekookplaat met afzuigkap en een combi-oven.
Aansluitend vind je de royale bijkeuken met een extra keukenblok en gootsteen, plus de aansluitingen voor wasmachine en droger. Via de bijkeuken loop je zo de tuin in. Daarnaast is er een handige bergkast met toegang tot het souterrain en een aparte kast waarin de CV-ketel (2001) en de unit voor de vloerverwarming netjes is weggewerkt.
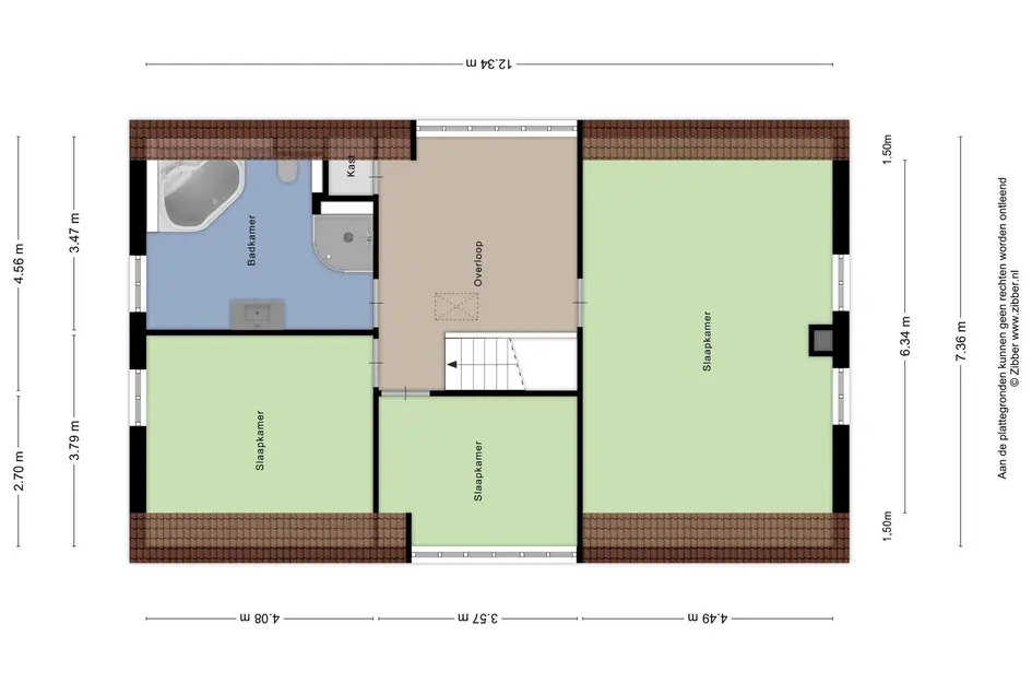
Eerste verdieping
Via de royale overloop – voorzien van een dakkapel die zorgt voor extra ruimte en licht – heb je toegang tot drie slaapkamers en de zeer ruime badkamer. De overloop biedt volop mogelijkheden, bijvoorbeeld voor een extra werkplek of een fijne leeshoek.
De hoofdslaapkamer aan de voorzijde is bijzonder ruim en heerlijk licht. De badkamer ligt aan de achterzijde van de woning en is royaal van opzet. Hier vind je een douchecabine, een ligbad, een badmeubel en een (hang)toilet – alles wat je nodig hebt voor een comfortabele start of ontspannen afsluiting van de dag.
Tweede verdieping
Via de vlizotrap op de overloop bereik je de tweede verdieping. Door de stahoogte is ook alles hier royaal: een ruime overloop en twee flinke bergkamers – dus volop potentie. Of je nu droomt van extra slaapkamers, een hobbyruimte of een praktische bergzolder – je kunt deze verdieping helemaal naar eigen wens inrichten.
Tuin
De achtertuin is een heerlijke plek om tot rust te komen. Dankzij de gunstige ligging geniet je hier van volop privacy. De achtertuin is voornamelijk voorzien van sierbestrating, daarnaast is er een praktische berging aanwezig, ideaal voor het opbergen van tuingereedschap, fietsen of andere spullen.
Scherpenisse ligt op het eiland Tholen en biedt een rijke geschiedenis en prachtige natuur. Het dorp heeft een unieke ligging aan de Pluimpot, een getijdengeul die nu een beschermd natuurgebied is met zeldzame vogelsoorten. Voor natuurliefhebbers zijn er volop wandel- en fietsmogelijkheden langs de kust en door de polders.
Benieuwd of dit jouw nieuwe (t)huis is? Maak snel een afspraak voor een bezichtiging via Leunis Makelaars en kom de sfeer zelf proeven!
Molenweg 23
SCHERPENISSE
Ook jouw woning succesvol verkopen? Neem dan contactmet ons op
Gratis waardeadviesOmschrijving
Kenmerken
Overdracht
- Status
- verkocht
- Aanvaarding
- in overleg
Bouw
- Soort woning
- woonhuis
- Soort woonhuis
- eengezinswoning
- Type woonhuis
- vrijstaande woning
- Aantal woonlagen
- 3
- Bouwjaar
- 2001
- Onderhoud binnen
- redelijk
- Onderhoud buiten
- redelijk
- Voorzieningen
- tv kabel, rookkanaal
- Isolatie
- volledig geisoleerd
Energie
- Energielabel
- A
- Verwarming
- cv ketel, open haard, vloerverwarming gedeeltelijk
- Warm water
- cv ketel
- C.V.-ketel
- Nefit Ecomline HR (gas gestookt combiketel, uit 2001, eigendom)
Oppervlakten en inhoud
- Woonoppervlakte
- 172 m²
- Perceeloppervlakte
- 375 m²
- Inhoud
- 1.067 m³
- Inpandige ruimte oppervlakte
- 116 m²
- Bergruimte oppervlakte
- 5 m²
Indeling
- Aantal kamers
- 5
Buitenruimte
- Ligging
- aan rustige weg, in woonwijk
- Tuin
- achtertuin met een oppervlakte van 118 m² en is gelegen op het oosten
Garage / Schuur / Berging
- Garage
- geen garage
- Parkeergelegenheid
- op eigen terrein
- Schuur/berging
- vrijstaand hout
Locatie
Downloads

Neem contact op
Vul onderstaande gegevens in en wij nemen zo spoedig mogelijk contact met je op.
