Te huur, gerenoveerde bovenwoning (appartement) met 4 slaapkamers, ruime woonkamer met open keuken, groot dakterras!
Geniet van rust, ruimte en comfort in deze goed gelegen bovenwoning in Sint-Annaland. Deze woning biedt alles wat u nodig heeft voor comfortabel en energiezuinig wonen (Energielabel A),
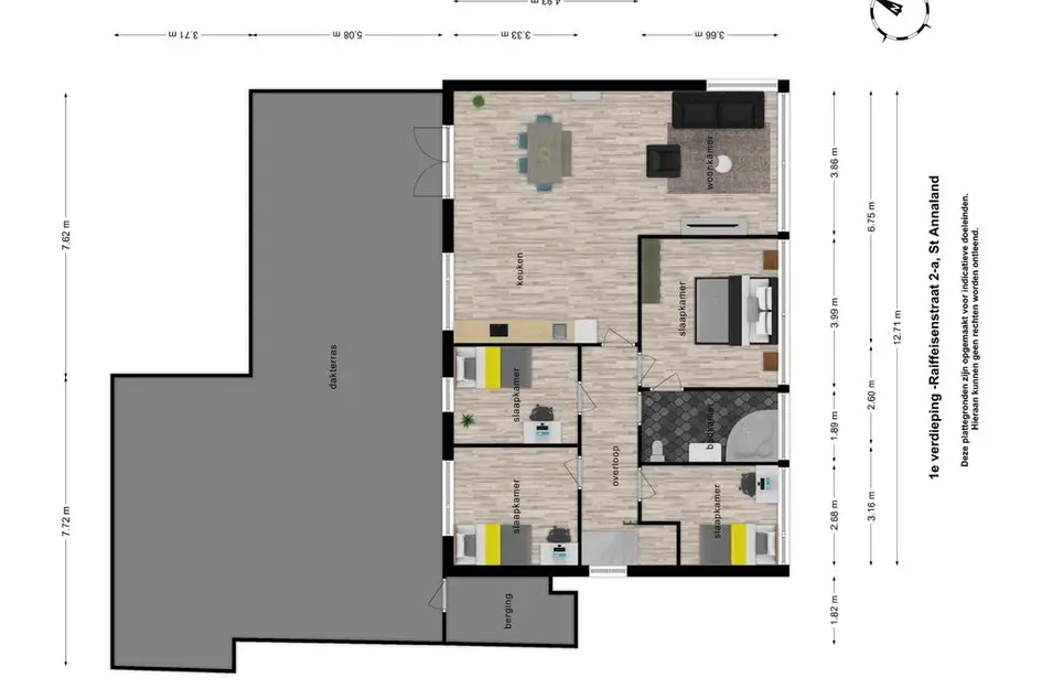
Bij binnenkomst via de ruime hal wordt u verwelkomd door een royale woonkamer van maar liefst 34 m2, waar u kunt ontspannen en genieten van gezellige avonden met familie en vrienden. De grote ramen zorgen voor veel natuurlijk licht.
De recentelijk vernieuwde keuken (2022) is voorzien van alle moderne gemakken en biedt een heerlijke plek om uw favoriete gerechten te bereiden. Vanuit de woonkamer is het ruime dakterras (103 m2) via openslaande deuren toegankelijk.
De woning beschikt over vier ruime slaapkamers en een nette complete badkamer.
Op de begane grond is er nog een ruime berging met een wasruimte voor de wasmachine.
Kortom, deze prachtige bovenwoning is instapklaar en energiezuinig.
Mis deze unieke kans niet en maak snel een afspraak voor een bezichtiging!
Kenmerken:
- Energielabel A
- Bovenwoning (appartement)
- Gehele 1e etage voorzien van vloerverwarming
- Ruime woonkamer van 34 m2
- Vier ruime slaapkamers en een badkamer
- Grote keuken 14 m2 (2022)
- Ruim dakterras (met berging)
Neem vandaag nog contact met ons op voor meer informatie of om een bezichtiging in te plannen.
Deze woning is klaar om uw nieuwe thuis te worden!
Wilt u in aanmerking komen voor deze woning? Lever dan uw profielschets bij ons aan via info@leunis.nl. Na ontvangst van uw profielschets nemen wij contact met u op.
- Profiel (wie bent u, wat is uw situatie op dit moment, hoe ziet de gezinssamenstelling eruit)
- Waarom wilt u deze woning huren en met wie?
- Hoe ziet uw financiële situatie eruit (wat voor werk doet u? Wat voor contract heeft u?)
- Voor hoelang wilt u de woning huren?
- NAW-gegevens (adres & telefoonnummer)
Kale huurprijs: € 1.325,- (exclusief water, elektra & gas)
Per direct beschikbaar
Huisdieren mogelijk in overleg
Roken binnen niet toegestaan
Voorkeur huurperiode voor onbepaalde tijd
LET OP: al onze dossiers worden gevalideerd door Huurcheck Nederland.
Een minimaal inkomen van 2,5 keer de huurprijs NETTO is een vereiste (€ 3.315,- NETTO)
Raiffeisenstraat 2a
SINT-ANNALAND
verhuurd
Ook jouw woning succesvol verkopen? Neem dan contactmet ons op
Gratis waardeadviesOmschrijving
Kenmerken
Overdracht
- Huurprijs
- verhuurd
- Status
- verhuurd
- Aanvaarding
- direct
VvE checklist
- Inschrijving KVK
- Nee
- Jaarlijkse vergadering
- Nee
- Periodieke bijdrage
- Nee
- Reservefonds aanwezig
- Nee
- Onderhoudsplan
- Nee
- Opstalverzekering
- Nee
Bouw
- Soort woning
- appartement
- Soort appartement
- bovenwoning
- Aantal woonlagen
- 2
- Woonlaag
- 1
- Bouwjaar
- 1966
- Open portiek
- nee
- Onderhoud binnen
- goed
- Onderhoud buiten
- goed
- Voorzieningen
- mechanische ventilatie, tv kabel
- Isolatie
- volledig geisoleerd
Energie
- Energielabel
- A
- Verwarming
- cv ketel
- Warm water
- cv ketel
- C.V.-ketel
- Intergas HR (gas gestookt combiketel, eigendom)
Oppervlakten en inhoud
- Woonoppervlakte
- 137 m²
- Perceeloppervlakte
- 137 m²
- Inhoud
- 454 m³
- Bergruimte oppervlakte
- 6 m²
- Buitenruimte oppervlakte
- 103 m²
Indeling
- Aantal kamers
- 6
Buitenruimte
- Ligging
- in centrum
- Tuin
- zonneterras met een oppervlakte van 103 m² en is gelegen op het noordwesten
Garage / Schuur / Berging
- Garage
- geen garage
- Parkeergelegenheid
- openbaar parkeren
- Schuur/berging
- inpandig
Locatie

Neem contact op
Vul onderstaande gegevens in en wij nemen zo spoedig mogelijk contact met je op.
