Leuke woning met potentie in de dorpskern van Sint-Annaland!
Deze nette tussenwoning beschikt onder andere over een doorzon woonkamer, 3 slaapkamers en een vaste trap naar de 2e verdieping voor een extra kamer!
De tuin biedt volop privacy, een fijne plek om te ontspannen of te genieten van het buitenleven. Gelegen in een kindvriendelijke buurt, met zowel de school als een speeltuin op loopafstand, is dit de perfecte plek voor jonge gezinnen.
Begane grond
De hal biedt toegang tot de meterkast, een verdiepte trapkast voor extra opbergruimte, een toilet en de trap naar de eerste verdieping. Vanuit de hal kom je in de woonkamer en de keuken. De doorzon woonkamer is praktisch en biedt veel ruimte en licht en is voorzien van een rolluik aan de voor- en achterzijde.
De dichte eenvoudige keuken in hoekopstelling biedt volop mogelijkheden om naar wens te moderniseren. Het is voorzien van een koel-vriescombinatie, een 4-pits gaskookplaat en een afzuigkap. Handig is ook de wasmachineaansluiting in de keuken, evenals de deur naar de achtertuin.
Eerste verdieping
Op de ruime overloop komen we uit bij drie praktische slaapkamers, de badkamer en de vaste trap naar de tweede verdieping. Ook is er nog een handige bergkast voor extra opslagruimte. Twee slaapkamers zijn goed van formaat en zijn voorzien van inbouwkasten, wat zorgt voor extra opbergruimte. De derde kamer is een wat kleinere ruimte, welke geschikt is als bijvoorbeeld jouw nieuwe thuiswerkplek. Tevens is deze ruimte ook voorzien van een inbouwkast.
De badkamer is voorzien van een inloopdouche en een wastafel. De ruimte is functioneel en biedt een prima basis voor modernisering, zodat je de badkamer kunt aanpassen naar je eigen smaak en er een eigentijdse uitstraling kunt creëren.
Tweede verdieping
De tweede verdieping is verrassend en biedt potentie voor een extra slaapkamer, werkplek of hobbyruimte. Daarnaast is er veel praktische bergruimte achter de knieschotten, en de cv-ketel (2016) is hier opgesteld.
Tuin
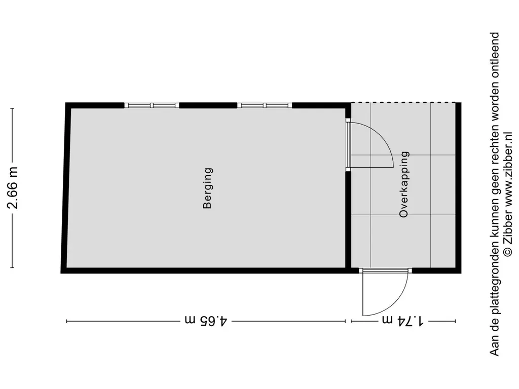
De tuin heeft een fijn formaat, met genoeg ruimte voor groen én een gezellig terras om van de buitenlucht te genieten. Achterin de tuin is er een vrije achterom, en daarnaast bevindt zich een stenen berging – ideaal voor het opbergen van fietsen, tuingereedschap of andere spullen.
Sint-Annaland
Sint-Annaland is een leuk dorp aan de Oosterschelde met een jachthaven, een uitnodigend zandstrandje en diverse winkelvoorzieningen binnen handbereik. Je kunt genieten van de rust en ruimte van het dorp, terwijl je toch centraal gelegen bent ten opzichte van nabijgelegen steden. Je hebt een goede verbindingsweg naar de A4 (Rotterdam-Antwerpen) en via de Oesterdam richting de A58 naar Goes en Middelburg. De Oosterschelde heeft wisselende getijden en fraaie vergezichten en biedt een schat aan mogelijkheden voor zeilen, duiken en zwemmen.
Mis deze kans niet en neem contact op met Leunis Makelaars voor een bezichtiging!
Neem contact op met Leunis Makelaars voor een bezichtiging – we laten je graag zien wat deze woning te bieden heeft!
Raiffeisenstraat 6
SINT-ANNALAND
Ook jouw woning succesvol verkopen? Neem dan contactmet ons op
Gratis waardeadviesOmschrijving
Kenmerken
Overdracht
- Status
- verkocht
- Aanvaarding
- in overleg
Bouw
- Soort woning
- woonhuis
- Soort woonhuis
- eengezinswoning
- Type woonhuis
- tussenwoning
- Aantal woonlagen
- 3
- Bouwjaar
- 1965
- Onderhoud binnen
- redelijk
- Onderhoud buiten
- redelijk
- Voorzieningen
- rolluiken, tv kabel, dakraam, natuurlijke ventilatie
- Isolatie
- dakisolatie, gedeeltelijk dubbel glas
Energie
- Energielabel
- C
- Verwarming
- cv ketel
- Warm water
- cv ketel
- C.V.-ketel
- Nefit Trendline HRC 25 (gas gestookt combiketel, uit 2016, eigendom)
Oppervlakten en inhoud
- Woonoppervlakte
- 77 m²
- Perceeloppervlakte
- 124 m²
- Inhoud
- 314 m³
- Inpandige ruimte oppervlakte
- 11 m²
- Bergruimte oppervlakte
- 12 m²
Indeling
- Aantal kamers
- 5
Buitenruimte
- Ligging
- aan rustige weg, in woonwijk
- Tuin
- achtertuin met een oppervlakte van 59 m² en is gelegen op het noordwesten
Garage / Schuur / Berging
- Garage
- geen garage
- Parkeergelegenheid
- openbaar parkeren
- Schuur/berging
- vrijstaand steen
Locatie
Downloads

Neem contact op
Vul onderstaande gegevens in en wij nemen zo spoedig mogelijk contact met je op.
