Op zoek naar een woning die van alle gemakken is voorzien en perfect gelegen is in een rustige, kindvriendelijke woonwijk in Sint-Maartensdijk? Deze prachtige woning met moderne keuken biedt niet alleen comfort, maar ook een uitstekende energiezuinigheid met energielabel B! Met maar liefst 3 ruime slaapkamers en een ruime zolderkamer is er voor ieder gezinslid voldoende ruimte. De gezellige tuin, compleet met een mooie tuinkamer, biedt een fijne plek om in alle privacy te ontspannen en te genieten van het buitenleven. Bovendien beschikt de woning over een garage, ideaal voor het stallen van je auto, extra opslag of als hobbyruimte. Deze woning is perfect voor een brede doelgroep, van starters die hun eerste huis willen betrekken, tot doorstromers die op zoek zijn naar meer ruimte en comfort. Hier kun je snel je nieuwe thuis creëren!
Begane grond
We stappen de woning binnen via de hal, waar je direct de meterkast, het toilet én de trap naar boven vindt. Vanuit de hal loop je zo door naar de gezellige woonkamer. Deze ligt aan de voorzijde van de woning en biedt een prachtig vrij uitzicht over het parkje – heerlijk om naar te kijken. De ramen aan de voorzijde zijn voorzien van screens.
De woonkamer ademt een warme en huiselijke sfeer, mede dankzij de mooie eiken vloer en het overvloedige daglicht dat via de grote ramen naar binnen valt. Er is genoeg ruimte voor een royale eethoek waar je met gemak gezellig kunt tafelen. Ook aan de achterzijde zorgen de grote ramen voor een mooie lichtinval, wat de ruimte nog ruimer en lichter doet aanvoelen.
De moderne keuken in hoekopstelling is in 2017 vernieuwd en is echt een pareltje! Hij is volledig uitgerust met alle benodigde inbouwapparatuur: een koelkast, vriezer, vaatwasser, oven en een 4-pits gaskookplaat met afzuigkap. De strakke plavuizenvloer maakt het geheel helemaal af. Via de tuindeur stap je vanuit de keuken zo naar buiten.
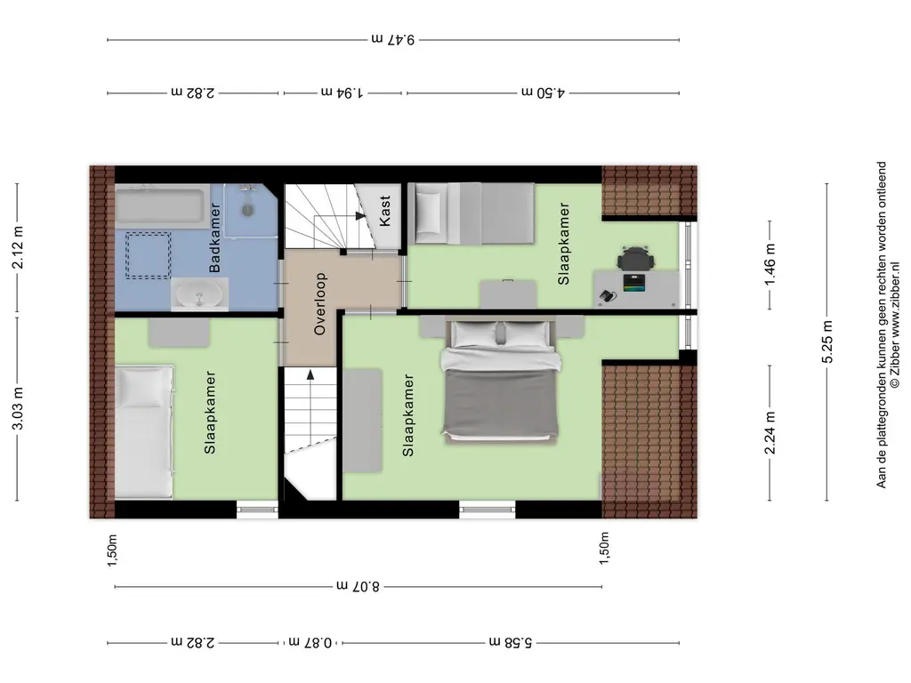
Eerste verdieping
Op de overloop krijg je toegang tot maar liefst drie slaapkamers en de badkamer. Daarnaast is er een handige vaste kast voor extra bergruimte, en vanaf hier bereik je via de vaste trap ook de tweede verdieping. Alle drie de slaapkamers zijn praktisch ingedeeld, lekker licht en voorzien van comfortabele vloerbedekking.
De badkamer is eveneens een fijne, lichte ruimte. Je vindt hier een douchecabine, een stijlvol badmeubel en een ligbad – perfect voor zowel de snelle ochtendroutine als een avondje ontspannen.
Tweede verdieping
Via de vaste trap kom je op de verrassend ruime tweede verdieping. Deze etage biedt volop mogelijkheden – of je nu een extra slaapkamer, een hobbyruimte of een rustige thuiswerkplek wilt creëren, het kan hier allemaal!
Daarnaast vind je hier de aansluitingen voor de wasmachine, de opstelplaats van de cv-ketel en de unit voor de mechanische ventilatie. Extra handig: dankzij de hoge nok is er ook nog ruimte voor een praktische steekzolder – ideaal voor het opbergen van seizoensspullen of andere zaken die je niet dagelijks nodig hebt.
Tuin
Wat een prachtige, ruime achtertuin – de speelse vorm zorgt meteen voor een uitnodigende uitstraling! De tuin is fraai aangelegd met diverse borders en gazonpartijen, wat een heerlijk rustige en natuurlijke sfeer creëert. De echte eyecatcher is de tuinkamer, die je dankzij de glazen schuifwanden het hele jaar door kunt gebruiken. Of het nu zomer of winter is, je geniet altijd van het buitenleven!
De tuin biedt bovendien veel privacy, doordat er aan de achterzijde een rustig pleintje ligt. Zo kun je in alle rust genieten van je buitenruimte zonder inkijk van buren.
Via de tuin is de garage gemakkelijk bereikbaar, die is uitgerust met een aluminium kanteldeur. Handig voor het stallen van je auto, maar ook perfect te gebruiken als hobby- of werkruimte – de mogelijkheden zijn eindeloos!
Sint-Maartensdijk
Het dorp Sint-Maartensdijk ligt aan de Oosterschelde. Het mooie oude centrum heeft maar liefst 27 rijksmonumenten. Het dorp combineert op fraaie wijze historische panden met moderne bouwstijlen. Vanuit de gezellige dorpskern met diverse winkelvoorzieningen sta je binnen een paar minuten in de natuur. Wandelaars en fietsers komen hier door de centrale positie op het eiland Tholen volop aan hun trekken. Ook watersporters komen niets te kort. In de nabijheid van Sint-Maartensdijk is een mooi kleinschalig strand en een prachtige duiklocatie te vinden die garant staat voor waterpret. Door de aansluiting van de verlengde A4 op het hoofdwegennet (A29) naar Rotterdam, wordt niet alleen de reistijd tussen de haven van Rotterdam en Antwerpen aanzienlijk bekort, maar neemt de bereikbaarheid van het eiland Tholen aanzienlijk toe.
Zie jij jezelf hier al wonen? Bel Leunis Makelaars voor een vrijblijvende bezichtiging!
Scholeksterlaan 14
SINT-MAARTENSDIJK
Ook jouw woning succesvol verkopen? Neem dan contactmet ons op
Gratis waardeadviesOmschrijving
Kenmerken
Overdracht
- Status
- verkocht
- Aanvaarding
- in overleg
Bouw
- Soort woning
- woonhuis
- Soort woonhuis
- eengezinswoning
- Type woonhuis
- twee onder een kapwoning
- Aantal woonlagen
- 3
- Bouwjaar
- 1996
- Onderhoud binnen
- goed
- Onderhoud buiten
- goed
- Voorzieningen
- mechanische ventilatie, tv kabel, buitenzonwering, dakraam, glasvezel kabel
- Isolatie
- volledig geisoleerd
Energie
- Energielabel
- B
- Verwarming
- cv ketel
- Warm water
- cv ketel
- C.V.-ketel
- Nefit Proline HRC 24 (gas gestookt combiketel, uit 2010, eigendom)
Oppervlakten en inhoud
- Woonoppervlakte
- 112 m²
- Perceeloppervlakte
- 202 m²
- Inhoud
- 396 m³
- Bergruimte oppervlakte
- 28 m²
- Buitenruimte oppervlakte
- 1 m²
Indeling
- Aantal kamers
- 5
Buitenruimte
- Ligging
- aan rustige weg, in woonwijk
- Tuin
- achtertuin met een oppervlakte van 85 m² en is gelegen op het noordoosten
Garage / Schuur / Berging
- Garage
- vrijstaande stenen garage
- Parkeergelegenheid
- openbaar parkeren
Locatie
Downloads

Neem contact op
Vul onderstaande gegevens in en wij nemen zo spoedig mogelijk contact met je op.
