Beoordelingen
9,0
Veerstraat 30a

Veerstraat 30a

OUD-VOSSEMEER

Ook jouw woning succesvol verkopen? Neem dan contactmet ons op

Gratis waardeadvies

Omschrijving

Deze prachtige woning in Oud-Vossemeer, gebouwd in 2015, is een unieke kans die je niet wilt missen! Perfect gelegen in een rustige straat met een vrije ligging aan de achterzijde en vlakbij het water, biedt deze woning alles wat je je maar kunt wensen. Met een A++ label en uitgerust met 10 zonnepanelen voor duurzaamheid is het niet alleen energiezuinig, maar ook helemaal toekomstbestendig! De woning heeft drie ruime slaapkamers, een moderne keuken, en een strakke badkamer die helemaal bij de tijd is. En het beste van alles? Je hebt parkeergelegenheid op eigen terrein, dus altijd plek voor 2 auto’s! De diepe tuin op het Zuid-Oosten is de perfecte plek om te genieten van de buitenlucht, met een fijne stenen berging en een vrije achterom.
Rust, ruimte en comfort – wat wil je nog meer? Een geweldige plek om je nieuwe thuis te maken!

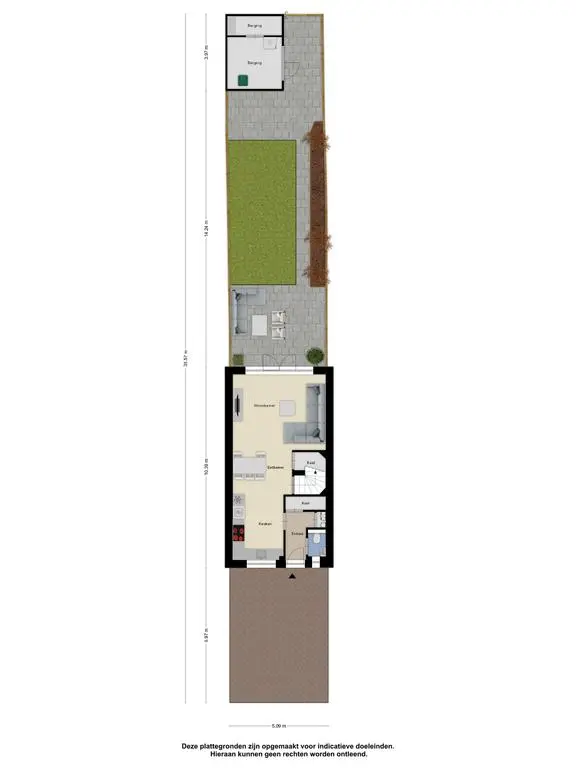
Begane grond
Bij binnenkomst word je meteen verwelkomd in een ruime hal, hier vind je het moderne (hang)toilet met fonteintje en een royale inloopkast – ideaal voor al je spullen! Ook de meterkast met krachtgroep voor het opladen van een elektrische auto is in de hal gesitueerd. De strakke hoekkeuken met veel natuurlijk licht heeft een koelkast, vriezer, vaatwasser, combimagnetron en een inductiekookplaat met afzuigkap. Aan de achterkant van de woning ligt de ruime woonkamer, waar ook veel natuurlijk licht binnenstroomt. Door de dubbele openslaande tuindeuren heb je een mooie verbinding met de tuin, die als het ware je woonkamer verlengt. De begane grond is voorzien van plavuizen met vloerverwarming. Verder is er nog een trapkast aanwezig in de woonkamer.

Eerste verdieping
De trap naar de eerste verdieping bevindt zich achter een deur in de woonkamer. Boven aangekomen kom je op de overloop die toegang biedt tot twee grote slaapkamers en de badkamer. De slaapkamer aan de achterzijde is bijzonder groot en licht door de 2 grote dakramen voorzien van elektrische rolluiken, met genoeg ruimte voor een grote kastenwand. De tweede slaapkamer aan de voorzijde is ook lekker licht door het grote dakraam. De badkamer is ruim qua opzet en volledig betegeld en voorzien van een douchecabine met een dubbele regendouche, een (hang)toilet, een fraai badmeubel en een groot dakraam.

Tweede verdieping
De tweede verdieping is bereikbaar via een vaste trap en biedt nog meer ruimte! Hier kun je een derde slaapkamer inrichten, of de ruimte gebruiken als hobbykamer of kantoor – wat je maar nodig hebt. Ook is er genoeg ruimte voor je wasmachine en droger, zodat alles netjes op één plek blijft. Ook vind je hier de opstelplaats van de CV-ketel.

Tuin
En dan de tuin… wat een rust en ruimte! De tuin is met zorg ingericht, met twee terrassen, een gazon en siertuin. Je loopt het poortje uit en je kan genieten van vergezichten over het polderlandschap. Hierdoor zit je in de achtertuin lekker vrij en geniet je hier van veel privacy. Verder is er nog een stenen berging, die voorzien is van elektra. Kortom, volop mogelijkheden om te ontspannen en van het buitenleven te genieten!

Oud-Vossemeer
Het dorp Oud-Vossemeer ligt op de grens van Zeeland en Brabant en wordt omgeven door uitgestrekte polders. Vanuit Oud-Vossemeer ben je zo op de A4 richting de randstad. Steden als Bergen op Zoom, Breda en Rotterdam zijn goed aan te rijden. Het dorp heeft een actief verenigingsleven, basisscholen en een supermarkt. Daarnaast biedt de omgeving prachtige natuurgebieden en schilderachtige landschappen, perfect voor wandelingen en fietstochten.

Plan je bezichtiging
Klinkt dit als jouw ideale woning? Neem dan contact op met Leunis Makelaars voor het inplannen van een bezichtiging!
Lees meer

Kenmerken

Overdracht
Status
verkocht
Aanvaarding
in overleg
Bouw
Soort woning
woonhuis
Soort woonhuis
eengezinswoning
Type woonhuis
tussenwoning
Aantal woonlagen
3
Bouwjaar
2015
Onderhoud binnen
goed
Onderhoud buiten
goed
Voorzieningen
mechanische ventilatie, rolluiken, tv kabel, dakraam, zonnepanelen
Isolatie
volledig geisoleerd
Energie
Energielabel
A++
Verwarming
cv ketel, vloerverwarming gedeeltelijk
Warm water
cv ketel
C.V.-ketel
Intergas Kompact HR 107 (gas gestookt combiketel, uit 2015, eigendom)
Oppervlakten en inhoud
Woonoppervlakte
104 m²
Perceeloppervlakte
294 m²
Inhoud
367 m³
Bergruimte oppervlakte
11 m²
Indeling
Aantal kamers
4
Buitenruimte
Ligging
aan rustige weg, in woonwijk
Tuin
achtertuin met een oppervlakte van 90 m² en is gelegen op het zuidoosten
Garage / Schuur / Berging
Garage
geen garage
Parkeergelegenheid
op eigen terrein
Schuur/berging
vrijstaand steen

Foto's

Plattegronden

Locatie

Downloads

Neem contact op

Vul onderstaande gegevens in en wij nemen zo spoedig mogelijk contact met je op.

Naam *
Telefoonnummer *
E-mailadres *
Bericht *