Ben je op zoek naar een huis met ruimte, privacy en een fijne ligging? Deze verzorgde woning in Bergen op Zoom heeft het allemaal: maar liefst vier slaapkamers, een nette badkamer, een diepe tuin met berging en garage, en dankzij het ruime opgezette plein aan de achterzijde ook nog eens veel privacy.
De huidige bewoners – bewoners van het eerste uur – hebben het huis altijd met liefde bewoond en goed onderhouden. Dat zie én voel je in alles. De woning is voorzien van 16 zonnepanelen en heeft een energielabel C en dit met alle voorzieningen binnen handbereik. Bergen op Zoom biedt het beste van twee werelden: een knusse thuisbasis, maar ook een levendige omgeving. Denk aan bourgondische sfeer, gezellige horeca, leuke winkels en een rijke historie met karakteristieke gebouwen.
Begane grond
Je komt binnen in een ruime hal met een prettige indeling. Hier vind je de meterkast, het (hang)toilet met fonteintje, de trap naar boven, een kelderkast en een handige kast waar de wasmachine en droger netjes zijn weggewerkt. Daarnaast is er een nis voor de garderobe en heb je toegang tot zowel de keuken als de woonkamer.
De woonkamer met massief eiken vloer is lekker licht en ruim opgezet. Aan de voorzijde bevindt zich het zitgedeelte, met een sfeervolle open haard (niet in gebruik) centraal in de ruimte. Achterin is er plek voor een royale eethoek. Extra praktisch: er is ook een vaste kast aanwezig.
De keuken is bereikbaar via zowel de hal als de woonkamer en is geplaatst in een hoekopstelling. Je vindt hier een koelkast, vaatwasser, twee ovens, een 4-pits gasfornuis met afzuigkap én volop werkruimte. Dankzij het grote raam en de tuindeur valt hier veel daglicht naar binnen. De vloer is voorzien van plavuizen.
Eerste verdieping
Vanaf de overloop heb je toegang tot drie slaapkamers, de badkamer en de trap naar de tweede verdieping.
Alle drie de slaapkamers zijn praktisch ingedeeld, lekker licht en voorzien van een vaste kast. Ze zijn afgewerkt met een neutrale laminaatvloer, wat zorgt voor een rustige basis. De ruime hoofdslaapkamer aan de voorzijde heeft daarnaast nog een eigen wastafel. De kleinere slaapkamer aan de achterzijde biedt toegang tot het balkon.
De badkamer is modern, netjes onderhouden en dankzij het grote raam heerlijk licht. Je vindt hier een inloopdouche, (hang)toilet en een wastafel met badmeubel.
Tweede verdieping
Op de tweede verdieping kom je eerst op een ruime en lichte overloop, met een dakraam dat zorgt voor prettig daglicht. Hier vind je de opstelplaats van de CV-ketel en de omvormer voor de zonnepanelen. Daarnaast is er volop ruimte — handig voor seizoensspullen, koffers of andere spullen die je niet dagelijks nodig hebt.
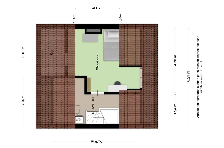
Achter de deur ligt slaapkamer nummer vier. Dankzij de dakkapel is dit een verrassend lichte en ruime kamer geworden. Hier zijn knieschotten aanwezig voor extra opbergruimte. Deze verdieping is multifunctioneel en kan helemaal naar wens worden ingericht — of je nu een extra slaapkamer, een rustige thuiswerkplek of een hobbyruimte zoekt!
Tuin
De achtertuin is lekker diep, waardoor je volop mogelijkheden hebt om hier je eigen fijne buitenplek van te maken. Direct aan het huis is een terras aangelegd — ideaal om buiten te eten of te ontspannen.
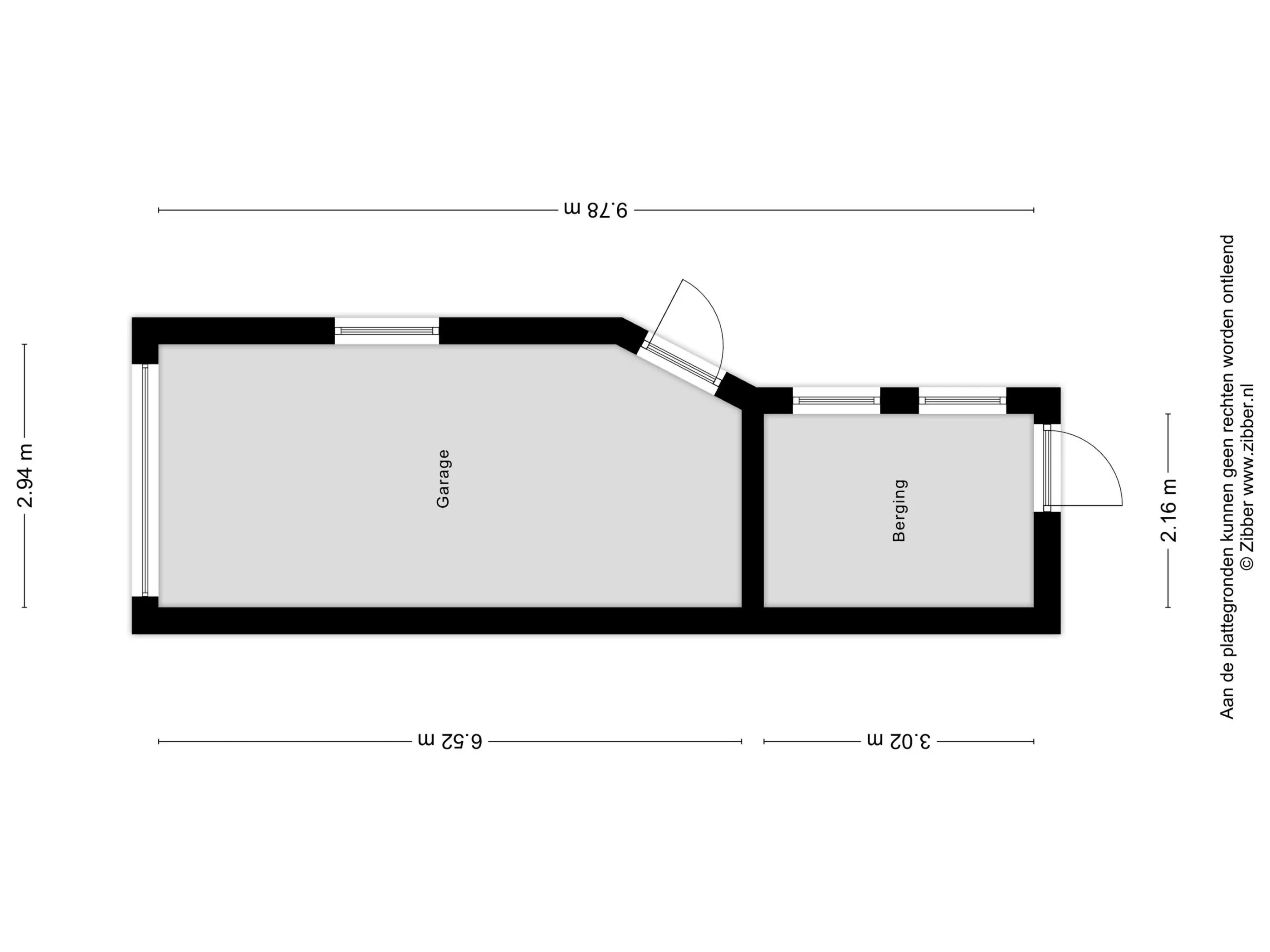
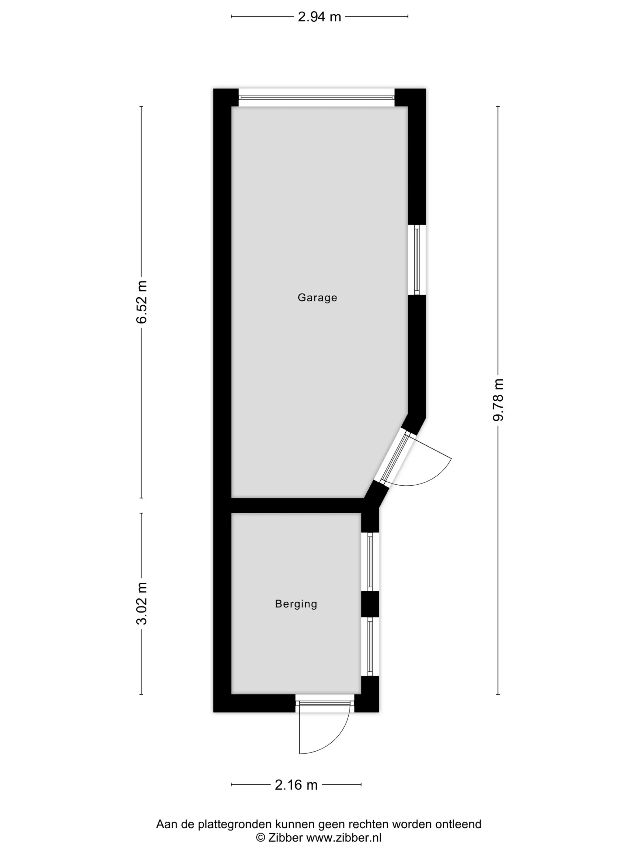
De tuin is bereikbaar via een achterom langs de woning, maar ook via de garage aan de achterzijde. De garage is voorzien van een elektrisch bedienbare paneeldeur en heeft elektra. Aangrenzend vind je nog een praktische berging, ook met elektra — perfect voor fietsen, tuingereedschap of als hobbyruimte. Zowel de garage als de berging zijn voorzien van kunststof kozijnen. Achter de tuin ligt een ruim opgezet plein, waardoor je geen directe inkijk van achterburen hebt. Dat zorgt voor een fijne dosis privacy in je eigen achtertuin.
Bergen op Zoom
Bergen op Zoom is een levendige stad met een rijke historie en een gevarieerd aanbod aan voorzieningen. De binnenstad is bekend om zijn monumentale gebouwen, gezellige pleinen, en sfeervolle winkelstraten. Je kunt er genieten van cultuur, met het Stadspaleis Het Markiezenhof als een van de hoogtepunten, en de natuur is nooit ver weg dankzij de nabijheid van het prachtige Brabantse Wal-gebied. De stad heeft daarnaast uitstekende verbindingen met steden als Antwerpen, Rotterdam, en Breda, waardoor het een ideale woonplaats is voor zowel gezinnen als forenzen.
Interesse in deze woning? Neem contact op met Leunis Makelaars voor het inplannen van een bezichtiging!
Wouwsestraatweg 43
BERGEN OP ZOOM
koopsom€ 380.000,- k.k.
Omschrijving
Kenmerken
Overdracht
- Koopsom
- € 380.000,- k.k.
- Status
- beschikbaar
- Aanvaarding
- in overleg
Bouw
- Soort woning
- woonhuis
- Soort woonhuis
- eengezinswoning
- Type woonhuis
- hoekwoning
- Aantal woonlagen
- 3
- Bouwjaar
- 1958
- Onderhoud binnen
- redelijk
- Onderhoud buiten
- redelijk
- Voorzieningen
- tv kabel, rookkanaal, dakraam, glasvezel kabel, zonnepanelen, natuurlijke ventilatie
- Isolatie
- gedeeltelijk dubbel glas
Energie
- Energielabel
- C
- Verwarming
- cv ketel, open haard
- Warm water
- cv ketel
- C.V.-ketel
- Remeha Tzerra M28C (gas gestookt combiketel, uit 2012, eigendom)
Oppervlakten en inhoud
- Woonoppervlakte
- 126 m²
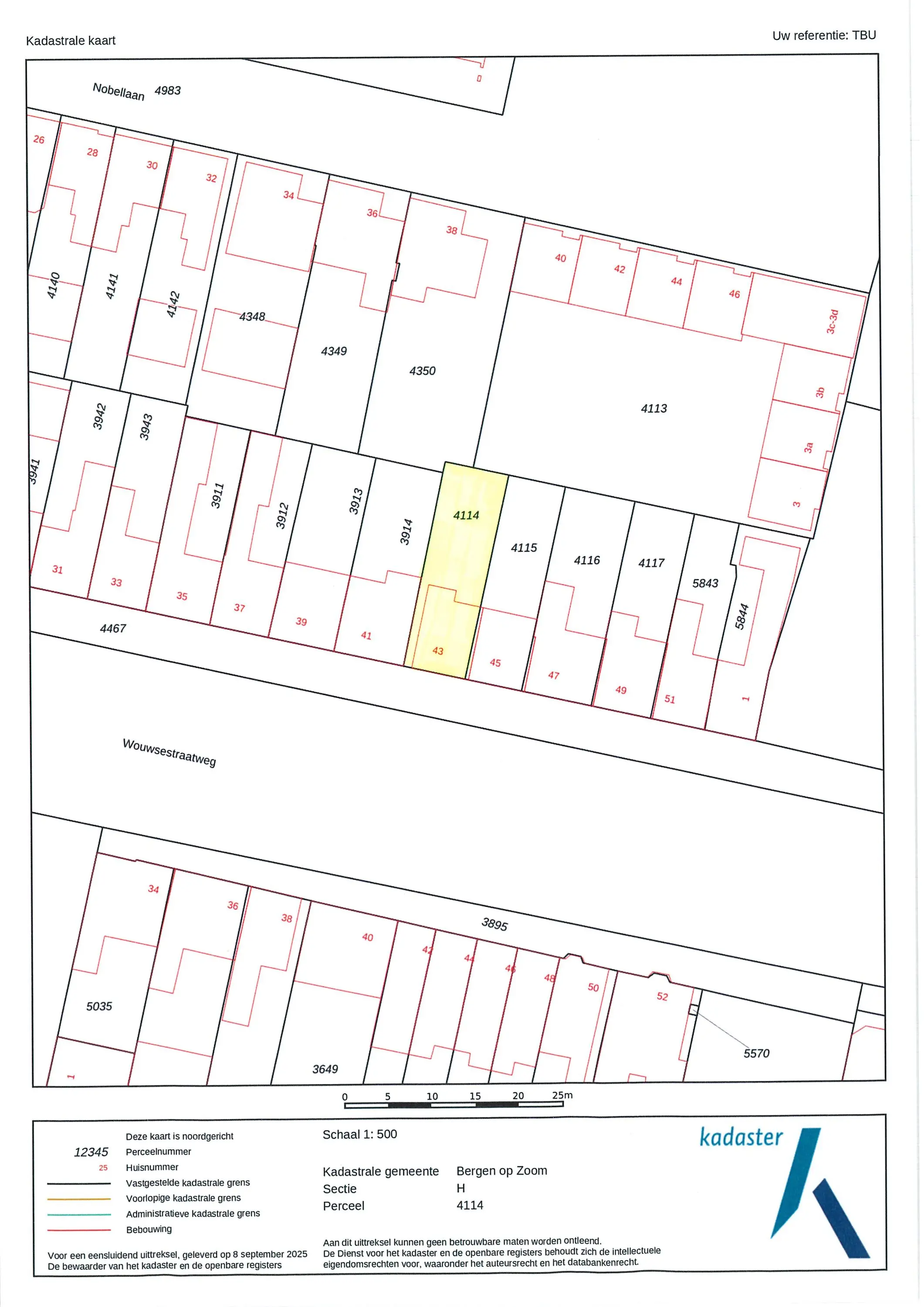
- Perceeloppervlakte
- 183 m²
- Inhoud
- 446 m³
- Bergruimte oppervlakte
- 26 m²
- Buitenruimte oppervlakte
- 4 m²
Indeling
- Aantal kamers
- 5
Buitenruimte
- Ligging
- in centrum, in woonwijk
- Tuin
- achtertuin met een oppervlakte van 98 m² en is gelegen op het noorden
Garage / Schuur / Berging
- Garage
- vrijstaande stenen garage
- Parkeergelegenheid
- openbaar parkeren
- Schuur/berging
- vrijstaand steen
Locatie
Downloads

Neem contact op
Vul onderstaande gegevens in en wij nemen zo spoedig mogelijk contact met je op.
